Plan No.309572
Charming Four Bedroom
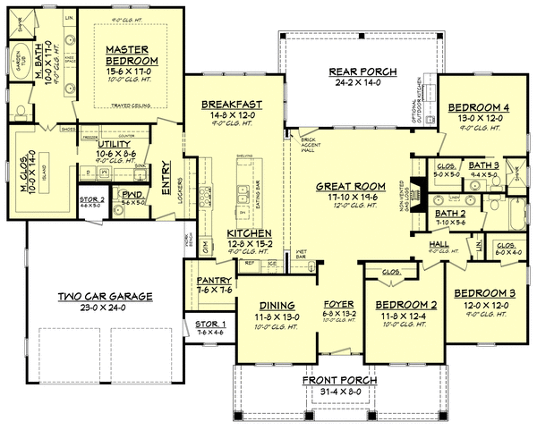
This charming four bedroom, three and a half bath craftsman style home features exquisite detailing such as tapered columns and trim around the windows, and ornate brackets supporting the roof overhangs. Generous front and rear porches provide sheltered areas to relax and watch the world go by. Inside, the kitchen offers a large butler's pantry connecting the kitchen and dining areas and a wet bar in the Great Room. The master suite has a spectacular bathroom, a walk in closet with an island and custom cabinetry and access to the laundry room.
Specifications
Total 2759 sq ft
- Main: 2759
- Second: 0
- Third: 0
- Loft/Bonus: 0
- Basement: 0
- Garage: 582
Rooms
- Beds: 4
- Baths: 3
- 1/2 Bath: 1
- 3/4 Bath: 0
Ceiling Height
- Main: 9'0-12'0
- Second:
- Third:
- Loft/Bonus:
- Basement:
- Garage:
Details
- Exterior Walls: 2x4
- Garage Type: doubleGarage
- Width: 77'8
- Depth: 61'6
Roof
- Max Ridge Height: 24'0
- Comments: (Main Floor to Peak)
- Primary Pitch: 10/12
- Secondary Pitch: 7/12
Add to Cart
Pricing
Full Rendering – westhomeplanners.com
MAIN Plan – westhomeplanners.com
REAR Elevation – westhomeplanners.com
[Back to Search Results]

833–493–0942

