Plan No.304352
Contemporary Farmhouse
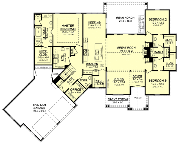
"This contemporary farmhouse home offers three bedrooms with a private master suite including a spa-like bath and generous master closet. A jack-and-jill bath layout connects the two other bedrooms and includes large walk-in closets. High ceilings throughout the main living areas create impressive spaces, and the gourmet kitchen with hidden pantry is every home cook's dream. A covered outdoor kitchen also provides additional space for entertaining. The exposed truss and beams on the front porch and the angled garage are just a few of the details that set this home apart. Please note, the Bonus Room area is not included in the total square footage.
Specifications
Total 2534 sq ft
- Main: 2534
- Second: 0
- Third: 0
- Loft/Bonus: 418
- Basement: 0
- Garage: 720
Rooms
- Beds: 3
- Baths: 2
- 1/2 Bath: 1
- 3/4 Bath: 0
Ceiling Height
- Main: 10'0-11'4
- Second:
- Third:
- Loft/Bonus: 9'0
- Basement:
- Garage:
Details
- Exterior Walls: 2x4
- Garage Type: doubleGarage
- Width: 88'7
- Depth: 70'10
Roof
- Max Ridge Height: 27'0
- Comments: (Main Floor to Peak)
- Primary Pitch: 9/12
- Secondary Pitch: 12/12
Add to Cart
Pricing
Full Rendering – westhomeplanners.com
MAIN Plan – westhomeplanners.com
ATTIC Plan – westhomeplanners.com
REAR Elevation – westhomeplanners.com
[Back to Search Results]

833–493–0942


