Plan No.203012
Comfortable Outdoor Spaces
A built-in gazebo on the front corner expands the usable porch area and gives this home a unique look. The main floor of this plan features 9'-0" high ceilings to add more volume to this already open design. The greatroom is vaulted for more even height. The photo does not show this optional vault in the greatroom. See also similar plans 202940 & 201647.
Specifications
Total 1694 sq ft
- Main: 1694
- Second: 0
- Third: 0
- Loft/Bonus: 0
- Basement: 1656
- Garage: 581
Rooms
- Beds: 3
- Baths: 2
- 1/2 Bath: 0
- 3/4 Bath: 0
Ceiling Height
- Main: 9'0
- Second:
- Third:
- Loft/Bonus:
- Basement: 8'0
- Garage:
Details
- Exterior Walls: 2x6
- Garage Type: doubleGarage
- Width: 54'0
- Depth: 60'0
Roof
- Max Ridge Height: 23'8
- Comments: (Main Floor to Peak)
- Primary Pitch: 7/12
- Secondary Pitch: 0/12
Add to Cart
Pricing
– westhomeplanners.com
– westhomeplanners.com
Alternate Crawlspace – westhomeplanners.com
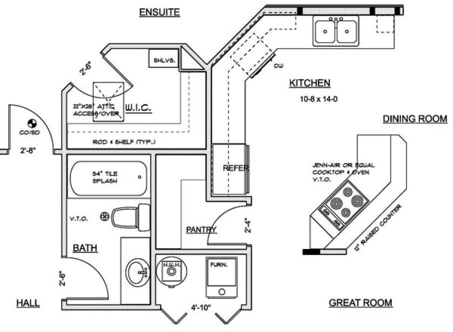
Kitchen – westhomeplanners.com
Bedroom 2 – westhomeplanners.com
Bedroom 3 – westhomeplanners.com
Great Room – westhomeplanners.com
Dining – westhomeplanners.com
Ensuite Bath – westhomeplanners.com
Family Bathroom – westhomeplanners.com
– westhomeplanners.com
[Back to Search Results]

833–493–0942









