Plan No.203212
A Classy Prowed Front
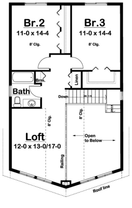
A classy prowed front graces this new A-frame design which you will find full of pleasant surprises. Starting on the second floor...the use of shed dormers not only gives a great exterior look, but provides the two bedrooms and bath with a full 8'-0" ceiling height. An attractive vaulted ceiling is visible for the rest of the roof and you can look over the railing down to the livingroom below in the handy loft/study area. A generously sized mudroom/utility area on the main floor with nearby lavatory is great for family returning home from work or play. The Great Room vaults from 9'-0" at wall to 21'-6" at peak.
Specifications
Total 1697 sq ft
- Main: 955
- Second: 742
- Third: 0
- Loft/Bonus: 0
- Basement: 0
- Garage: 0
Rooms
- Beds: 3
- Baths: 2
- 1/2 Bath: 0
- 3/4 Bath: 0
Ceiling Height
- Main: 8'0-21'6
- Second: 8'0
- Third:
- Loft/Bonus:
- Basement:
- Garage:
Details
- Exterior Walls: 2x6
- Garage Type: none
- Width: 29'0
- Depth: 49'0
Roof
- Max Ridge Height: 23'0
- Comments: (Main Floor to Peak)
- Primary Pitch: 12/12
- Secondary Pitch: 4.5/12
Add to Cart
Pricing
– westhomeplanners.com
– westhomeplanners.com
– westhomeplanners.com
– westhomeplanners.com
– westhomeplanners.com
[Back to Search Results]

833–493–0942



