Plan No.740858
Country Charm
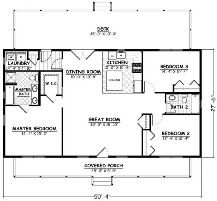
This wonderfully designed ranch home is given a bit country charm with its expansive covered front porch and doghouse dormers. Covered Porch – This delightful covered porch spanning the length of the home will surely be a spot to sit on a warm evening throughout the year. Great Room – Step directly into this grand room from the covered front porch, a space that is certain to be the gathering spot for all. The room is open to both the kitchen and dining room allowing for a seamless transition from one room to the next. Dining Room – With French doors to the ample sized rear deck, and open to both the kitchen and the great room, this area will not only serve as a spot for the weekday family meals but also for the occasional dinner party. Kitchen – The center island in this kitchen provides the chef with additional counter space making meal preparations a joy. Open to both the great room and the kitchen allows the chef to interact with the rest of the family. Master Suite – Set apart from the secondary bedrooms in the home, is this generous sized master suite. The suite features a large walk-in closet, and a private bath thus providing you with the perfect place to relax after a long day. The bath features a tub, separate shower and dual vanities adding to the privacy and comfort of the suite. Secondary Bedrooms –There are two gracious sized secondary bedrooms in the home along with an additional full bath. The generous layout of this home is perfect for the young family. It is affordable to build and can easily be expanded to fit the needs of the ever-changing family dynamics.
Specifications
Total 1381 sq ft
- Main: 1381
- Second: 0
- Third: 0
- Loft/Bonus: 0
- Basement: 0
- Garage: 0
Rooms
- Beds: 3
- Baths: 2
- 1/2 Bath: 0
- 3/4 Bath: 0
Ceiling Height
- Main: 8'0
- Second:
- Third:
- Loft/Bonus:
- Basement:
- Garage:
Details
- Exterior Walls: 2x6
- Garage Type: none
- Width: 50'4
- Depth: 27'6
Roof
- Max Ridge Height: 20'1
- Comments: (Main Floor to Peak)
- Primary Pitch: 8/12
- Secondary Pitch: 4/12

833–493–0942



