Plan No.592352
Efficient One-Storey Modern Farmhouse Plan
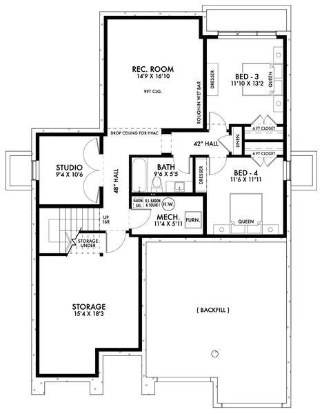
This efficient modern farmhouse plan combines an elegant exterior with a highly functional interior. Featuring 4 comfortable bedrooms plus den, 3 baths, open concept living room with a vaulted ceiling, double garage, generous covered patios, large storage and rec. room, low maintenance siding and current energy efficiency standards. The flexible basement storage area could be easily modified into a 5th bedroom with its own bath.
Specifications
Total 2532 sq ft
- Main: 1447
- Second: 0
- Third: 0
- Loft/Bonus: 0
- Basement: 1085
- Garage: 0
Rooms
- Beds: 4
- Baths: 2
- 1/2 Bath: 0
- 3/4 Bath: 1
Ceiling Height
- Main: 9'0
- Second:
- Third:
- Loft/Bonus:
- Basement: 8'9
- Garage:
Details
- Exterior Walls: 2x6
- Garage Type:
- Width: 40'0
- Depth: 71'0
Roof
- Max Ridge Height: 18'9
- Comments: (Main Floor to Peak)
- Primary Pitch: 6/12
- Secondary Pitch: 12/12
Add to Cart
Pricing
Full Rendering – westhomeplanners.com
MAIN Plan – westhomeplanners.com
BASEMENT Plan – westhomeplanners.com
LEFT Elevation – westhomeplanners.com
RIGHT Elevation – westhomeplanners.com
Optional Walkout Basement – westhomeplanners.com
Optional Walkout Basement – westhomeplanners.com
[Back to Search Results]

833–493–0942





