Plan No.352290
Vaulted Ceilings
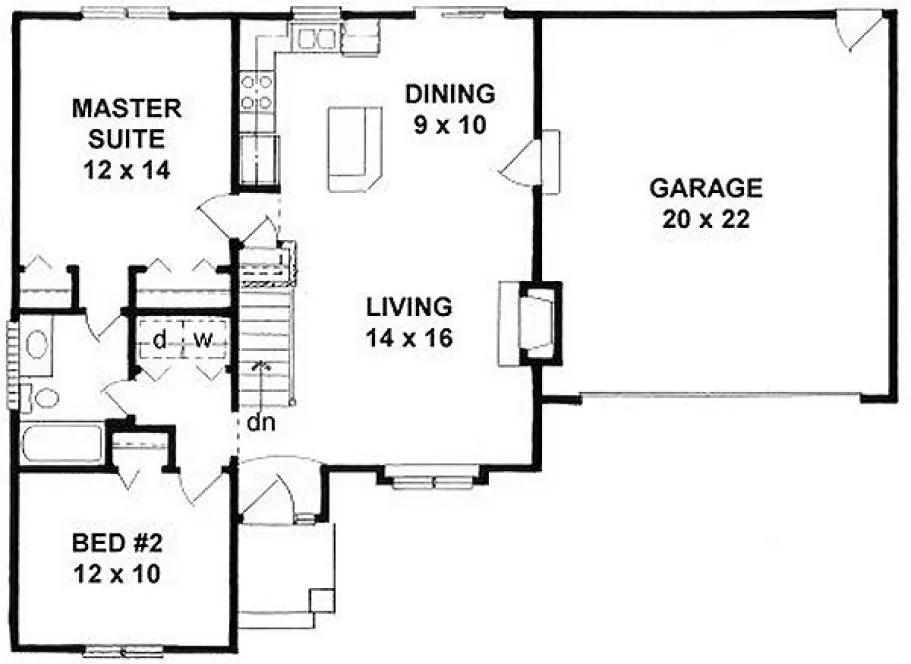
Two Bedroom Ranch featuring vaulted ceilings in the MBR, Living, Kitchen & Dining, open kitchen bar, window seat in the living room, Jack & Jill closets, Hollywood bath and main floor utility closet. Unfinished View-out Basement, Opt'l Finish, Rec room, 2 Bedrooms and a Full Bath.
Specifications
Total 922 sq ft
- Main: 922
- Second: 0
- Third: 0
- Loft/Bonus: 0
- Basement: 835
- Garage: 0
Rooms
- Beds: 2
- Baths: 1
- 1/2 Bath: 0
- 3/4 Bath: 0
Ceiling Height
- Main: 8'0
- Second:
- Third:
- Loft/Bonus:
- Basement:
- Garage:
Details
- Exterior Walls: 2x6
- Garage Type:
- Width: 50'0
- Depth: 36'0
Roof
- Max Ridge Height:
- Comments: ()
- Primary Pitch: 6/12
- Secondary Pitch: 8/12
Add to Cart
Pricing
– westhomeplanners.com
– westhomeplanners.com
– westhomeplanners.com
[Back to Search Results]

833–493–0942

