Plan No.354260
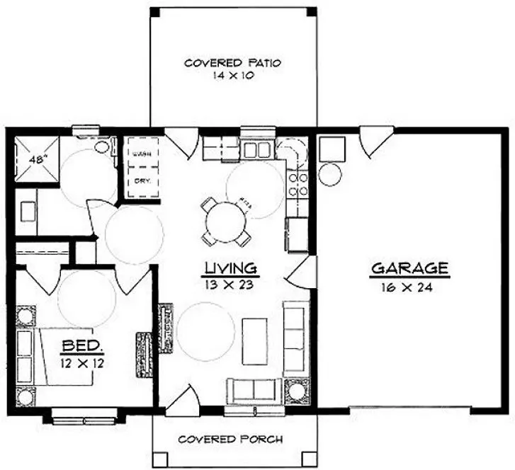
Small affordable home designed to meet ADA & disabled veteran requirements. This very sturdy and well insulated home offers plenty of open atmosphere with 9' high walls, vaulted ceilings Living, Dining, Kitchen & Bedroom and large transom windows for lots of natural light. Features include 5' diameter turns throughout the house, 3' doors, 4' x 4' roll-in shower, "zero entry" slab foundation and a 10' wide x 8' high garage door to accommodate accessible vehicles. The kitchen is well equipped with appliances and shares a circular pedestal table for both work-space and dining, there's also access to a covered patio for outdoor cooking and entertainment.
Specifications
Total 624 sq ft
- Main: 624
- Second: 0
- Third: 0
- Loft/Bonus: 0
- Basement: 0
- Garage: 0
Rooms
- Beds: 1
- Baths: 0
- 1/2 Bath: 0
- 3/4 Bath: 1
Ceiling Height
- Main: 9'0
- Second:
- Third:
- Loft/Bonus:
- Basement:
- Garage:
Details
- Exterior Walls: 2x6
- Garage Type: singleGarage
- Width: 42'0
- Depth: 38'0
Roof
- Max Ridge Height:
- Comments: ()
- Primary Pitch: 6/12
- Secondary Pitch: 8/12
Add to Cart
Pricing
– westhomeplanners.com
– westhomeplanners.com
– westhomeplanners.com
[Back to Search Results]

833–493–0942

