Plan No.345943
Impressive Entrance
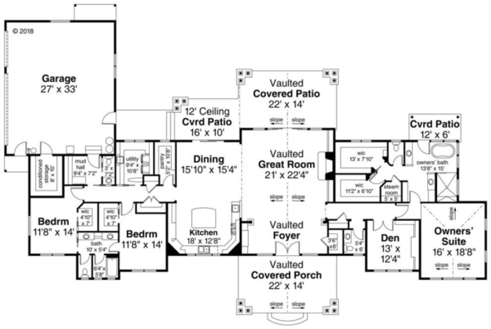
The traditional exterior of this design has an impressive entrance with stone columns, tall vaulted porch, and large windows surrounding double doors. Many windows let in lots of warm, natural sunlight throughout the plan. Through the entrance, directly through the foyer, is a vaulted great room with a cozy fireplace. Just off the great room is a dining area and a u-shaped kitchen with an island at the center. To the left of the plan are the two bedrooms, utility room, and a mud room which leads into the 3-car garage facing the side of the house. The right side of the plan holds a den and the owners' suite. The owners' bath is sure to impress with a soaking tub, walk-in shower, his-and-hers walk-in closets, a steam room, and private access to a covered patio.
Specifications
Total 3495 sq ft
- Main: 3495
- Second: 0
- Third: 0
- Loft/Bonus: 0
- Basement: 0
- Garage: 939
Rooms
- Beds: 3
- Baths: 2
- 1/2 Bath: 2
- 3/4 Bath: 0
Ceiling Height
- Main: 10'0
- Second:
- Third:
- Loft/Bonus:
- Basement:
- Garage:
Details
- Exterior Walls: 2x6
- Garage Type: tripleGarage
- Width: 121'0
- Depth: 77'0
Roof
- Max Ridge Height: 24'8
- Comments: (Main Floor to Peak)
- Primary Pitch: 9/12
- Secondary Pitch: 0/12

833–493–0942



