Plan No.348072
Charming & Inviting Inside & Out
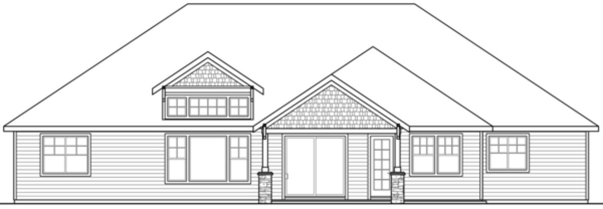
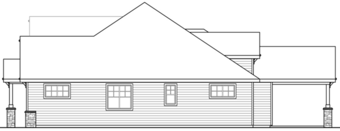
Here is a ranch style home blended with craftsman accents that make the exterior charming and inviting. Through the front door is a vaulted entry, with the ceiling sloped up towards the great room, giving a grand entrance feel. The dining room is well defined yet open, separated from the great room by a stylish wet bar that will impress any guest. The great room is spacious with a bay of windows to let in natural light and a cozy fireplace nestled in the corner for the chilly winters. The kitchen is large and functional, with peninsula providing ample workspace and a corner walk-in pantry for storage. The peninsula separates the kitchen from a nook for a breakfast table or informal dining. Down the hall from the kitchen and dining room is a functional utility room with a lot of counter space and a utility sink. Down the hall a little more is the owners' suite, private from the rest of the house. The owners' suite has its own access to the covered patio and a luxurious bath. A soaking tub sits in the corner under a window for a relaxing retreat. There is also a sizeable shower, dual vanity, private toilet, and an immense walk-in closet. The opposite side of the house has two additional bedrooms and just off the entry is a fourth bedroom which could function as an office as well. The design also has a three car garage, with extra space for storage.
Specifications
Total 2708 sq ft
- Main: 2708
- Second: 0
- Third: 0
- Loft/Bonus: 0
- Basement: 0
- Garage: 846
Rooms
- Beds: 4
- Baths: 2
- 1/2 Bath: 1
- 3/4 Bath: 0
Ceiling Height
- Main: 9'0-14'0
- Second:
- Third:
- Loft/Bonus:
- Basement:
- Garage:
Details
- Exterior Walls: 2x6
- Garage Type: tripleGarage
- Width: 78'0
- Depth: 67'6
Roof
- Max Ridge Height: 26'6
- Comments: (Main Floor to Peak)
- Primary Pitch: 8/12
- Secondary Pitch: 0/12

833–493–0942



