Plan No.869042
Columns & Arches
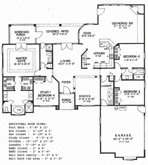
Columns and arches punctuate the interior spaces. A cozy Gathering Room is situated adjacent to the Kitchen and Nook, creating views and angles rarely found. Kitchen is 14'-10" wide x 13'-4" deep. Convenient placement of the secondary bath creates a comfortable separation of bedrooms for added privacy. To change from block walls to 2 x 6 or 2 x 4, 2 x 4 walls to 2 x 6 or frame walls to block walls call for a quote.
Specifications
Total 2409 sq ft
- Main: 2409
- Second: 0
- Third: 0
- Loft/Bonus: 0
- Basement: 0
- Garage: 497
Rooms
- Beds: 4
- Baths: 3
- 1/2 Bath: 0
- 3/4 Bath: 0
Ceiling Height
- Main: 10'0
- Second:
- Third:
- Loft/Bonus:
- Basement:
- Garage:
Details
- Exterior Walls: 2x4
- Garage Type: doubleGarage
- Width: 66'4
- Depth: 72'0
Roof
- Max Ridge Height: 23'2
- Comments: (Main Floor to Peak)
- Primary Pitch: 8/12
- Secondary Pitch: 0/12
Add to Cart
Pricing
– westhomeplanners.com
– westhomeplanners.com
– westhomeplanners.com
– westhomeplanners.com
– westhomeplanners.com
[Back to Search Results]

833–493–0942



