Plan No.267614
Triple Garage, RV Garage & Apartment
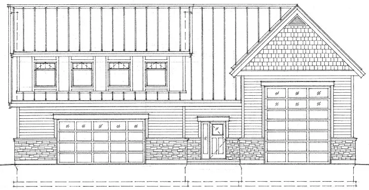
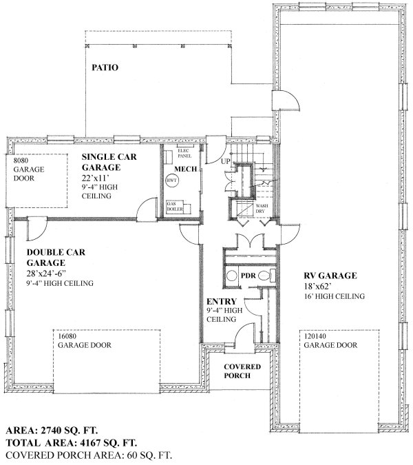
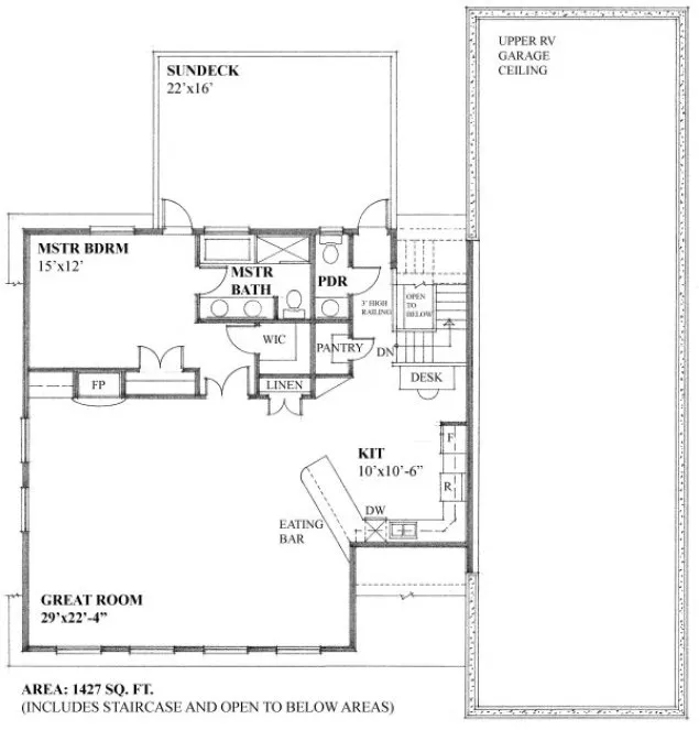
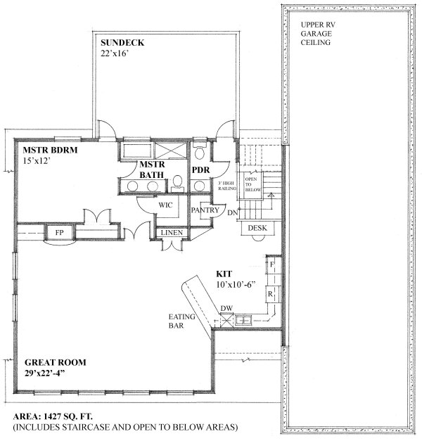
The RV garage portion of this combination garage has a sixteen foot high ceiling accessed though a fourteen foot high by twelve foot wide overhead door. The double car garage has a nine foot four inch high ceiling with a sixteen foot wide by eight foot high overhead door. The single car garage has a nine foot four inch high ceiling with an eight foot wide by eight foot high overhead door. The covered porch opens into the entry with a nine foot four inch high ceiling height; spacious closets, mechanical room, stacking washer / dryer and contains a conveniently located powder bathroom. The entry also provides access to both the RV and double car garage areas to facilitate easy equipment movement between units. The apartment office space overlooks the lower vaulted ceiling entry complete with plant ledge. The remaining apartment area has an eight foot ceiling. A large rear facing sundeck is accessed through the office space or master bedroom.
Specifications
Total 4167 sq ft
- Main: 2740
- Second: 1427
- Third: 0
- Loft/Bonus: 0
- Basement: 0
- Garage: 0
Rooms
- Beds: 1
- Baths: 1
- 1/2 Bath: 2
- 3/4 Bath: 0
Ceiling Height
- Main: 9'4
- Second: 8'0
- Third:
- Loft/Bonus:
- Basement:
- Garage:
Details
- Exterior Walls: 2x6
- Garage Type:
- Width: 60'8
- Depth: 64'4
Roof
- Max Ridge Height: 28'10
- Comments: (Main Floor to Peak)
- Primary Pitch: 12/12
- Secondary Pitch: 10/12

833–493–0942

