Plan No.264761
Private Covered Master Balcony
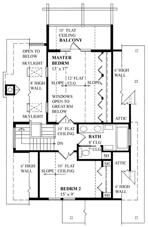
This five bedroom three bathroom open floor plan retreat ensures that no one is left out of the invitations or activities. The main level outdoor living spaces include an open sundeck a covered sundeck as well as a screened porch ideal for anything the weather can throw at you. The two second floor bedrooms with ten and twelve foot vaulted ceilings have ample closet space and the master boasts a private rear facing covered balcony. The daylight basement plan contains two additional bedrooms, shared bathroom and multipurpose recreation room with rear French door patio access.
Specifications
Total 1674 sq ft
- Main: 988
- Second: 686
- Third: 0
- Loft/Bonus: 0
- Basement: 988
- Garage: 0
Rooms
- Beds: 5
- Baths: 2
- 1/2 Bath: 1
- 3/4 Bath: 0
Ceiling Height
- Main: 8'0
- Second: 10'0-12'0
- Third:
- Loft/Bonus:
- Basement:
- Garage:
Details
- Exterior Walls: 2x6
- Garage Type:
- Width: 36'0
- Depth: 50'6
Roof
- Max Ridge Height: 25'0
- Comments: (Main Floor to Peak)
- Primary Pitch: 12/12
- Secondary Pitch: 6/12
		Add to Cart
		Pricing
			
		
	
		
	
	
	Full Rendering – westhomeplanners.com
	
	
	
	
	MAIN Plan – westhomeplanners.com
	
	
	
	
	SECOND Plan – westhomeplanners.com
	
	
		
		
	[Back to Search Results]

 833–493–0942
 833–493–0942

