Plan No.261731
Vaulted Master Suite
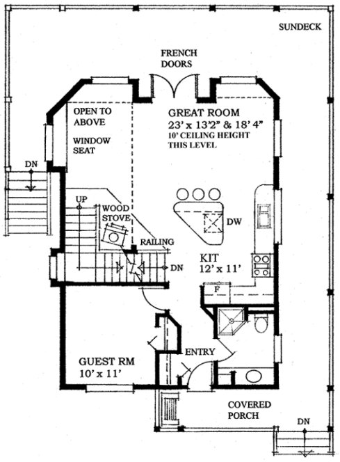
The main level of this three-bedroom cottage boasts a ten-foot ceiling enhanced by a partially vaulted great room ceiling. With the entire Kitchen complete with a large Island open to the Great Room it makes this a truly open and expansive versatile year-round living space, warmed by a centrally located wood stove. The upstairs vaulted Master Bedroom has two interior functionally opening windows that overlook the Great Room below creating a unique look and feel to this suite. A private balcony is accessed through French Doors.
Specifications
Total 1370 sq ft
- Main: 806
- Second: 564
- Third: 0
- Loft/Bonus: 0
- Basement: 0
- Garage: 0
Rooms
- Beds: 3
- Baths: 0
- 1/2 Bath: 0
- 3/4 Bath: 2
Ceiling Height
- Main: 10'0
- Second:
- Third:
- Loft/Bonus:
- Basement:
- Garage:
Details
- Exterior Walls: 2x6
- Garage Type: none
- Width: 36'0
- Depth: 47'0
Roof
- Max Ridge Height: 29'0
- Comments: (Main Floor to Peak)
- Primary Pitch: 12/12
- Secondary Pitch: 12/12
Add to Cart
Pricing
– westhomeplanners.com
– westhomeplanners.com
– westhomeplanners.com
[Back to Search Results]

833–493–0942

