Plan No.597351
Modern Bungalow House Plan
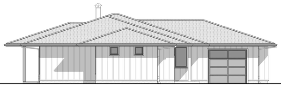
This modern bungalow house plan combines a 10'-6" vaulted open concept living room with 2 bedrooms, 2 full baths and generous covered patios for outdoor entertaining. Own the most handsome home on your street with this low slung design with dramatic 48" roof overhangs! This home has been skillfully designed by an award winning North American design firm to be energy efficient in both hot and cold climates. Easily expandable garage. Choose this plan to experience why hundreds of happy customers already live in our homes!
Specifications
Total 1537 sq ft
- Main: 1537
- Second: 0
- Third: 0
- Loft/Bonus: 0
- Basement: 0
- Garage: 406
Rooms
- Beds: 2
- Baths: 1
- 1/2 Bath: 0
- 3/4 Bath: 1
Ceiling Height
- Main: 9'0-10'6
- Second:
- Third:
- Loft/Bonus:
- Basement:
- Garage:
Details
- Exterior Walls: 2x6
- Garage Type: singleGarage
- Width: 57'0
- Depth: 58'4
Roof
- Max Ridge Height: 15'11
- Comments: (Main Floor to Peak)
- Primary Pitch: 4/12
- Secondary Pitch: 0/12
Add to Cart
Pricing
– westhomeplanners.com
– westhomeplanners.com
– westhomeplanners.com
– westhomeplanners.com
– westhomeplanners.com
FRONT Elevation – westhomeplanners.com
[Back to Search Results]

833–493–0942




