Plan No.657921
Charming Bungalow
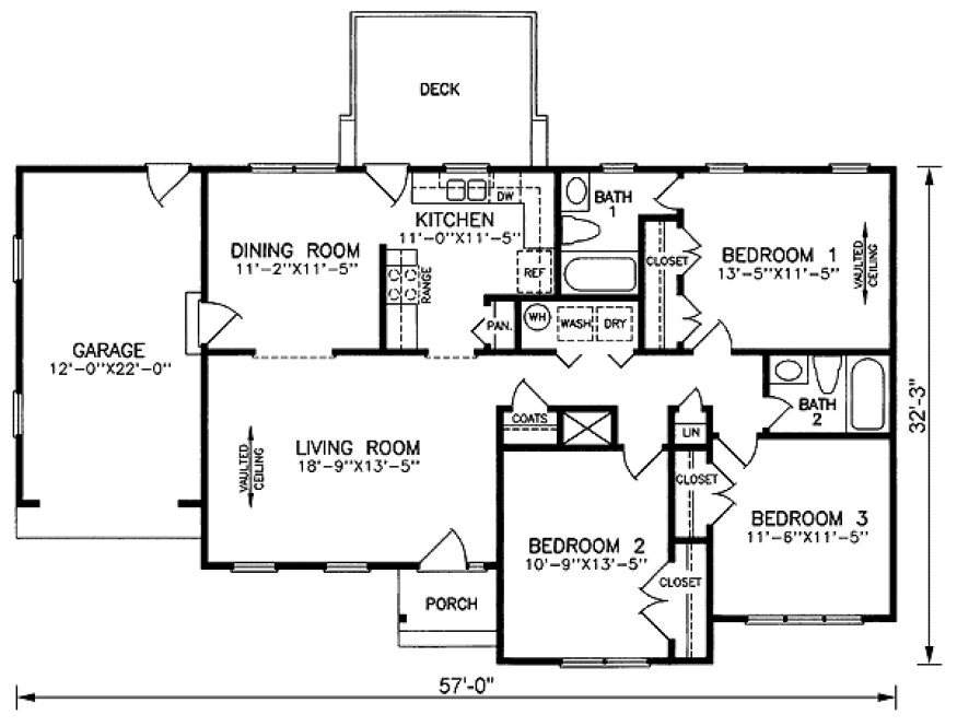
A vaulted ceiling, natural light from two front-facing windows, a sidelight at the front entry-these contribute to the impressive ambience in the living room. Access to back deck from kitchen and dining room areas provides for outdoor dining on fair-weather days. In addition to the wealth of features in this 1297 square-foot home design, its affordability makes it a good candidate for a first home or a comfortable abode for empty-nesters.
Specifications
Total 1297 sq ft
- Main: 1297
- Second: 0
- Third: 0
- Loft/Bonus: 0
- Basement: 0
- Garage: 0
Rooms
- Beds: 3
- Baths: 2
- 1/2 Bath: 0
- 3/4 Bath: 0
Ceiling Height
- Main: 8'0
- Second:
- Third:
- Loft/Bonus:
- Basement:
- Garage:
Details
- Exterior Walls: 2x4
- Garage Type: singleGarage
- Width: 57'0
- Depth: 33'0
Roof
- Max Ridge Height:
- Comments: ()
- Primary Pitch: 0/12
- Secondary Pitch: 0/12
Add to Cart
Pricing
– westhomeplanners.com
– westhomeplanners.com
Elevations – westhomeplanners.com
[Back to Search Results]

833–493–0942

