Plan No.306292
Fresh Farmhouse Plan
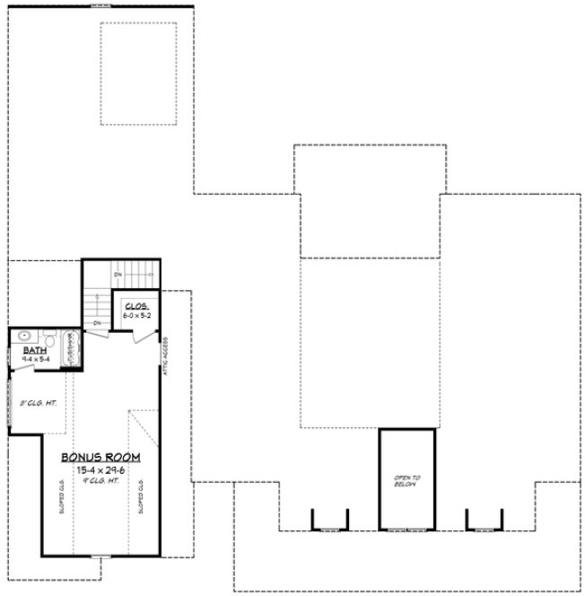
This fresh four bedroom farmhouse plan greets you with a wrapped front porch, open concept living spaces, and a flexible bonus room over the spacious three car garage. The main living space offers vaulted ceilings and large sliding doors for access to a grand outdoor entertaining space. The well-equipped kitchen has everything you could want and is complete with a large island, eating bar, and walk-in pantry. The bedrooms are all well sized and the master suite features dual vanities, tub space and shower, and a huge walk-in closet that connects directly to the Laundry room. Please note, the Bonus Room area is not included in the total square footage. Unlimited License To Build included with CAD file sale. CAD file sale also includes PDF file.
Specifications
Total 2926 sq ft
- Main: 2926
- Second: 0
- Third: 0
- Loft/Bonus: 606
- Basement: 0
- Garage: 900
Rooms
- Beds: 4
- Baths: 3
- 1/2 Bath: 1
- 3/4 Bath: 0
Ceiling Height
- Main: 10'0-11'4
- Second:
- Third:
- Loft/Bonus: 9'0
- Basement:
- Garage:
Details
- Exterior Walls: 2x4
- Garage Type: tripleGarage
- Width: 76'0
- Depth: 77'8
Roof
- Max Ridge Height: 31'0
- Comments: (Main Floor to Peak)
- Primary Pitch: 10/12
- Secondary Pitch: 12/12

833–493–0942





