Plan No.505631
Specifications
Total 1365 sq ft
- Main: 1365
- Second: 0
- Third: 0
- Loft/Bonus: 0
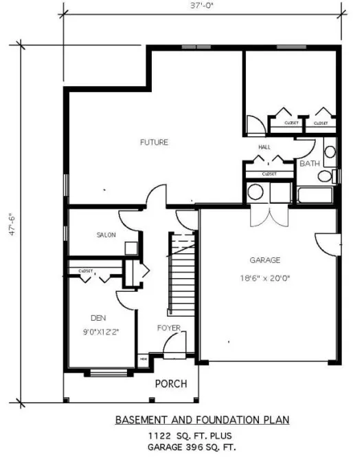
- Basement: 1122
- Garage: 396
Rooms
- Beds: 3
- Baths: 3
- 1/2 Bath: 0
- 3/4 Bath: 0
Ceiling Height
- Main:
- Second:
- Third:
- Loft/Bonus:
- Basement:
- Garage:
Details
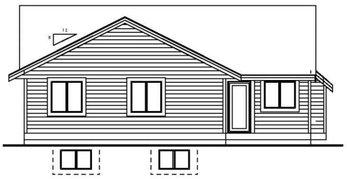
- Exterior Walls: 2x4
- Garage Type: doubleGarage
- Width: 37'0
- Depth: 47'6
Roof
- Max Ridge Height:
- Comments: ()
- Primary Pitch: 0/12
- Secondary Pitch: 0/12
Add to Cart
Pricing
– westhomeplanners.com
– westhomeplanners.com
– westhomeplanners.com
– westhomeplanners.com
– westhomeplanners.com
– westhomeplanners.com
[Back to Search Results]

833–493–0942




