Plan No.490909
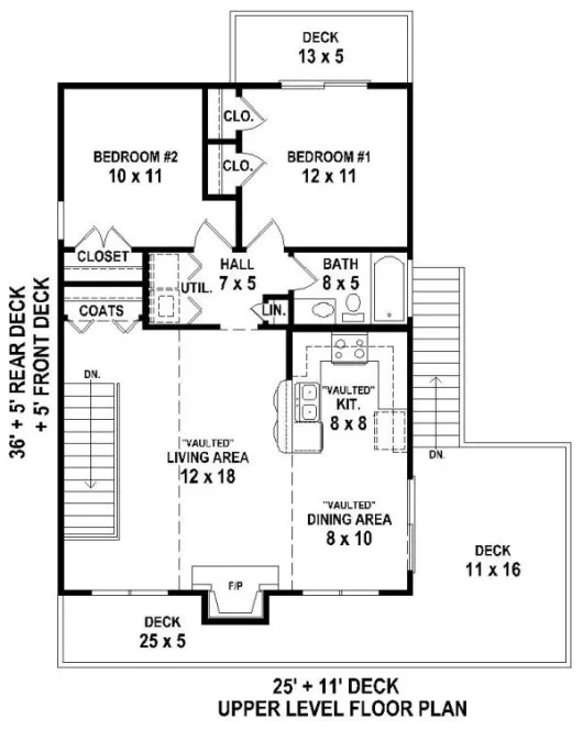
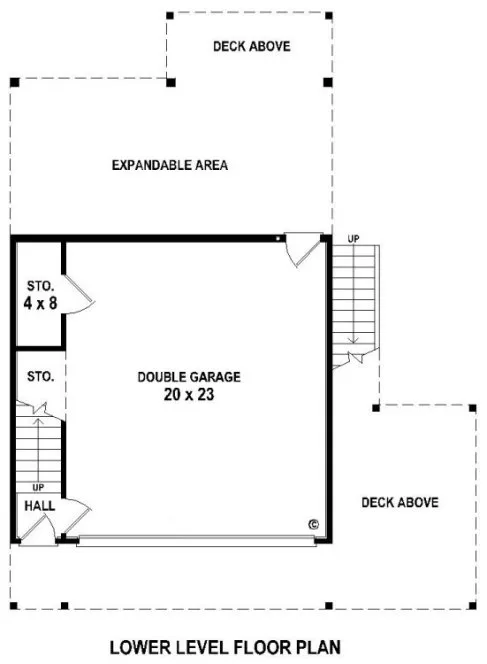
The overall depth of 46' includes the 5' decks front & rear. The garage area includes the storage room.
Specifications
Total 909 sq ft
- Main: 845
- Second: 0
- Third: 0
- Loft/Bonus: 0
- Basement: 64
- Garage: 517
Rooms
- Beds: 2
- Baths: 1
- 1/2 Bath: 0
- 3/4 Bath: 0
Ceiling Height
- Main: 8'0+
- Second:
- Third:
- Loft/Bonus:
- Basement: 8'0
- Garage:
Details
- Exterior Walls: 2x4
- Garage Type: doubleGarage
- Width: 36'0
- Depth: 46'0
Roof
- Max Ridge Height: 30'0
- Comments: (Front Door Level to Peak)
- Primary Pitch: 0/12
- Secondary Pitch: 0/12
Add to Cart
Pricing
– westhomeplanners.com
– westhomeplanners.com
– westhomeplanners.com
[Back to Search Results]

833–493–0942

