Plan No.530971
Open Kitchen With Island
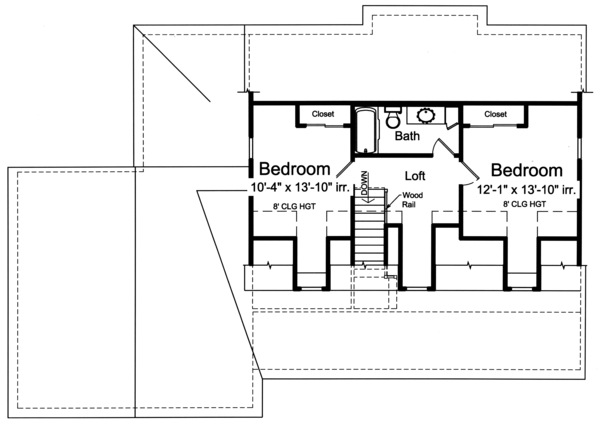
A Cape Cod exterior with covered front porch and oversized side entry garage offers a large Great Room, with gas fireplace, and a first floor Master Suite with double bowl vanity, shower and large walk-in closet. The open Kitchen with island and Dining Area combined with the Great Room provide a space that feels much larger than its actual size. Organized to form a mud room and family entry you will find a half bath, laundry room and storage closet. The upper level features a spacious loft with bath access and two additional bedrooms. The walk-out basement offers an outstanding opportunity for additional square footage, if needed, making this home a wonderful option for your family in a residential development or for a lakefront or mountain retreat.
Specifications
Total 1790 sq ft
- Main: 1197
- Second: 593
- Third: 0
- Loft/Bonus: 0
- Basement: 1197
- Garage: 566
Rooms
- Beds: 3
- Baths: 1
- 1/2 Bath: 1
- 3/4 Bath: 1
Ceiling Height
- Main: 8'0
- Second: 8'0
- Third:
- Loft/Bonus:
- Basement:
- Garage:
Details
- Exterior Walls: 2x4
- Garage Type: doubleGarage
- Width: 59'0
- Depth: 521'0
Roof
- Max Ridge Height: 24'6
- Comments: (Main Floor to Peak)
- Primary Pitch: 10/12
- Secondary Pitch: 10/12

833–493–0942





