Plan No.158952
Unique Design Elements
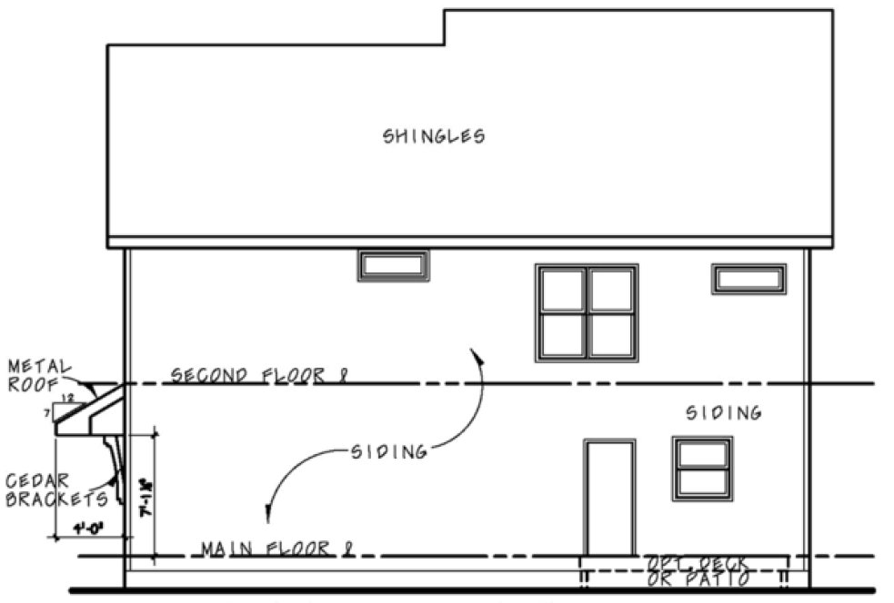
Several interesting design elements – notably the shed roofs, shake shingle accent and specialty windows – combine for this home's unique appeal. This 2-story home can be tailored to many home buyer preferences, particularly with it’s independent casita atop the garage. Is that for your college student? Your home-based business? Or even your married child as they pay off student loans and save for a down payment? The main floor is wonderfully open for entertaining, and storage is obviously a priority, evidenced by walk-in closets and the huge kitchen pantry!
Specifications
Total 2598 sq ft
- Main: 1108
- Second: 1490
- Third: 0
- Loft/Bonus: 0
- Basement: 0
- Garage: 473
Rooms
- Beds: 4
- Baths: 1
- 1/2 Bath: 1
- 3/4 Bath: 2
Ceiling Height
- Main: 9'0
- Second: 8'0
- Third:
- Loft/Bonus:
- Basement:
- Garage:
Details
- Exterior Walls: 2x6
- Garage Type: doubleGarage
- Width: 40'0
- Depth: 50'8
Roof
- Max Ridge Height: 33'10
- Comments: (Main Floor to Peak)
- Primary Pitch: 8/12
- Secondary Pitch: 6/12
Add to Cart
Pricing
– westhomeplanners.com
– westhomeplanners.com
– westhomeplanners.com
– westhomeplanners.com
– westhomeplanners.com
– westhomeplanners.com
[Back to Search Results]

833–493–0942




