Plan No.307702
Beautiful Farmhouse Plan
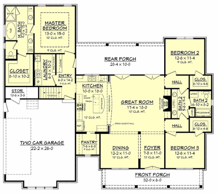
There's no shortage of curb appeal for this beautiful 3 bedroom modern farmhouse plan. The formal entry and dining room open into a large open living area with raised ceilings and brick accent wall. The large kitchen has views to the rear porch and features an island with eating bar as well as a large pantry. The 3 bedrooms are well-sized and all include large walk-in closets. As an extra feature, an upstairs bonus space is provided that would be perfect for a guest suite or that family game room. With so much to offer, make this your next home today!Please note: The Bonus Area is not included in Total Living Area Square Footage. Unlimited License To Build included with CAD file sale. CAD file sale also includes PDF file.
Specifications
Total 2077 sq ft
- Main: 2077
- Second: 0
- Third: 0
- Loft/Bonus: 372
- Basement: 0
- Garage: 622
Rooms
- Beds: 3
- Baths: 2
- 1/2 Bath: 0
- 3/4 Bath: 0
Ceiling Height
- Main: 9'0
- Second:
- Third:
- Loft/Bonus: 8'0
- Basement:
- Garage:
Details
- Exterior Walls: 2x4
- Garage Type: doubleGarage
- Width: 67'0
- Depth: 59'0
Roof
- Max Ridge Height: 27'2
- Comments: (Main Floor to Peak)
- Primary Pitch: 9/12
- Secondary Pitch: 12/12
Add to Cart
Pricing
– westhomeplanners.com
– westhomeplanners.com
– westhomeplanners.com
Front Photo – westhomeplanners.com
Foyer & Dining – westhomeplanners.com
Great Room to Kitchen – westhomeplanners.com
Great Room – westhomeplanners.com
Kitchen to Great Room – westhomeplanners.com
Kitchen – westhomeplanners.com
Master Bath – westhomeplanners.com
Master Bath – westhomeplanners.com
Master Bedroom – westhomeplanners.com
Master Walk-in Closet – westhomeplanners.com
Walk-in Pantry – westhomeplanners.com
– westhomeplanners.com
– westhomeplanners.com
– westhomeplanners.com
[Back to Search Results]

833–493–0942















