Plan No.344682
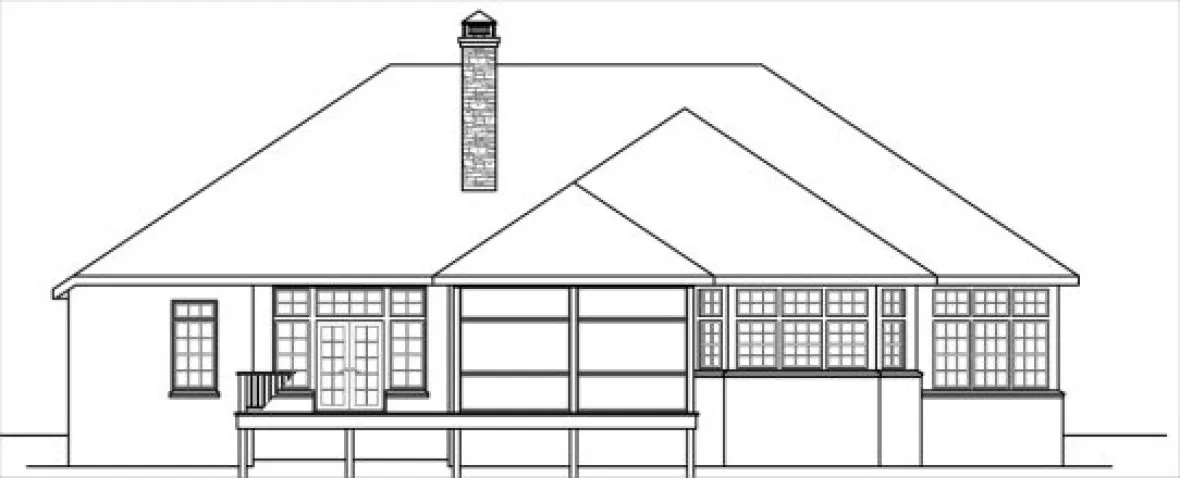
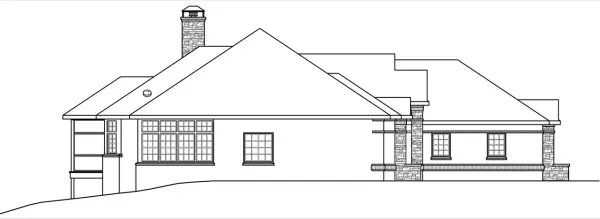
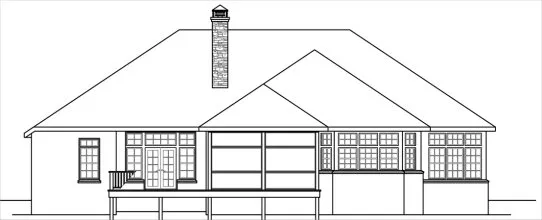
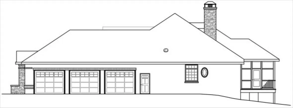
Handsome Exterior
Brick and stone adorn the exterior of the handsome, European style Toketee. The interior has an elegant feel with high, vaulted ceilings and arched openings. Just in from the vaulted entry is a study with built-in bookcase and window seat. Through the entry hall and arched opening leads to the vaulted great room with a cozy fireplace and a screened porch at the rear. An eating bar separates the great room and the kitchen. The large, well-appointed kitchen has an island and step-in pantry. Just off the kitchen is a bright, vaulted sunroom and a formal dining room. A private hallway leads to the two bedrooms. On the opposite side of the house, through another arched opening, is the entrance to the owners' suite. The owners' suite is its very own private retreat with high vaulted ceilings, private access to a deck, and a cozy sitting room. The owners' bath has a luxurious walk-in shower, private water closet, large walk-in closet, and a relaxing bathtub. The Toketee also has a large, convenient utility room and a side-entry three car garage suitable for a corner lot.
Specifications
Total 2864 sq ft
- Main: 2864
- Second: 0
- Third: 0
- Loft/Bonus: 0
- Basement: 0
- Garage: 1297
Rooms
- Beds: 3
- Baths: 2
- 1/2 Bath: 1
- 3/4 Bath: 0
Ceiling Height
- Main: 9'0
- Second:
- Third:
- Loft/Bonus:
- Basement:
- Garage:
Details
- Exterior Walls: 2x6
- Garage Type: tripleGarage
- Width: 73'0
- Depth: 86'8
Roof
- Max Ridge Height: 27'6
- Comments: (Main Floor to Peak)
- Primary Pitch: 8/12
- Secondary Pitch: 0/12

833–493–0942



