Plan No.159021
Details Matter
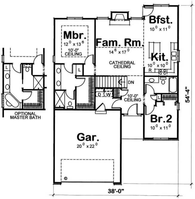
Details matter, as evidenced by the twin sidelites and transom window atop the entry door. Just beyond, a spacious entry – so unexpected and so appreciated in a modest-size home! Then it’s on to the open entertaining area benefiting from an added feeling of spaciousness due to the family room’s cathedral ceiling. The 92” long, double-bowl vanity and compartmented 60” shower in the owner’s bathroom add to the feeling of spaciousness, as does the large walk-in closet and 32”-wide interior doors. Or, if you dream of stress melting away as you soak in the bathtub, there’s the option of a soaking corner tub and separate shower!
Specifications
Total 1209 sq ft
- Main: 1209
- Second: 0
- Third: 0
- Loft/Bonus: 0
- Basement: 0
- Garage: 461
Rooms
- Beds: 2
- Baths: 1
- 1/2 Bath: 0
- 3/4 Bath: 1
Ceiling Height
- Main: 9'0
- Second:
- Third:
- Loft/Bonus:
- Basement: 9'0
- Garage:
Details
- Exterior Walls: 2x4
- Garage Type: doubleGarage
- Width: 38'0
- Depth: 54'4
Roof
- Max Ridge Height: 21'8
- Comments: (Main Floor to Peak)
- Primary Pitch: 6/12
- Secondary Pitch: 6/12
Add to Cart
Pricing
– westhomeplanners.com
– westhomeplanners.com
Elevations – westhomeplanners.com
[Back to Search Results]

833–493–0942

