Plan No.690022
Specifications
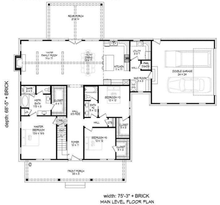
Total 2200 sq ft
- Main: 2200
- Second: 0
- Third: 0
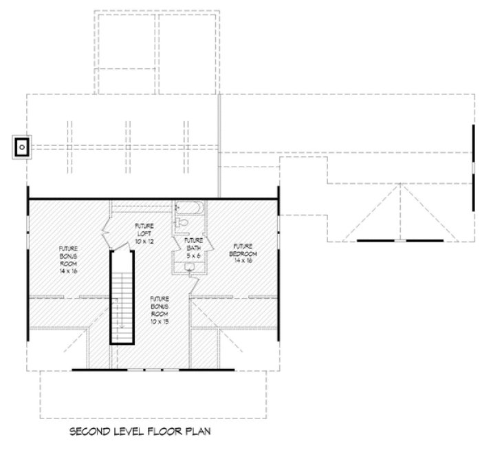
- Loft/Bonus: 1030
- Basement: 0
- Garage: 605
Rooms
- Beds: 3
- Baths: 2
- 1/2 Bath: 0
- 3/4 Bath: 0
Ceiling Height
- Main: 10'0
- Second:
- Third:
- Loft/Bonus:
- Basement:
- Garage:
Details
- Exterior Walls: 2x4
- Garage Type: doubleGarage
- Width: 75'3
- Depth: 68'5
Roof
- Max Ridge Height: 30'1
- Comments: (Main Floor to Peak)
- Primary Pitch: 10/12
- Secondary Pitch: 3/12
Add to Cart
Pricing
– westhomeplanners.com
MAIN Plan – westhomeplanners.com
– westhomeplanners.com
Rear Rendering – westhomeplanners.com
– westhomeplanners.com
– westhomeplanners.com
– westhomeplanners.com
[Back to Search Results]

833–493–0942





