Plan No.101012
DUPLEX TOTAL LIVING AREA BOTH SIDES 2404 SQ FEET
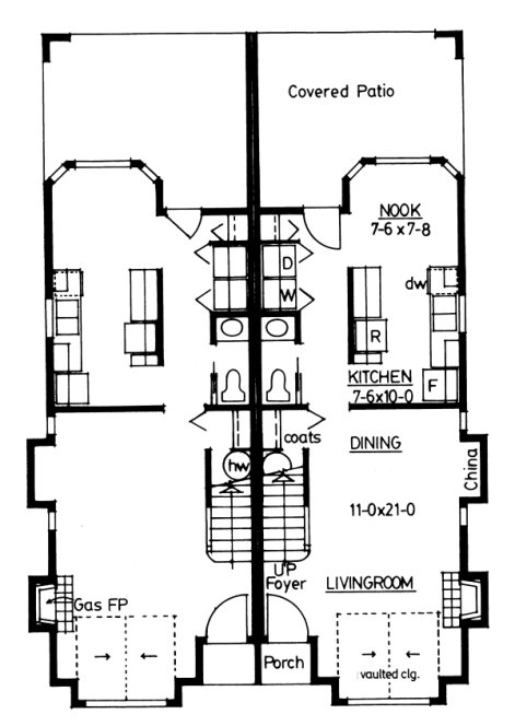
Planned for a growing family, the living areas are well-zoned according to function to make this duplex feel much larger. An attractive vaulted ceiling, boxed window and gas fireplace make the livingroom very appealing. Upstairs, three large bedrooms with good-sized closets await, and the master suite has its own bath complete with shower. Side bump outs are not included in the width they add 18 inches to each side. The SLAB version will have no bump outs and will show hardiboard siding. Plan number 101015 This version can be ordered with the crawlspace as well.
Specifications
Total 1202 sq ft
- Main: 560
- Second: 642
- Third: 0
- Loft/Bonus: 0
- Basement: 0
- Garage: 0
Rooms
- Beds: 3
- Baths: 2
- 1/2 Bath: 1
- 3/4 Bath: 0
Ceiling Height
- Main: 8'0
- Second: 8'0
- Third:
- Loft/Bonus:
- Basement:
- Garage:
Details
- Exterior Walls: 2x6
- Garage Type: none
- Width: 33'0
- Depth: 49'6
Roof
- Max Ridge Height: 24'9
- Comments: (Main Floor to Peak)
- Primary Pitch: 6/12
- Secondary Pitch: 0/12
Add to Cart
Pricing
– westhomeplanners.com
– westhomeplanners.com
– westhomeplanners.com
[Back to Search Results]

833–493–0942

