Plan No.707862
Grand Impressions
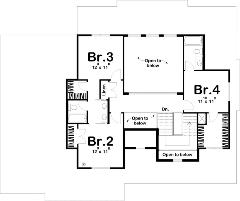
Wood beams and board and batten siding give this family-friendly 1.5-story house plan a beautiful modern farmhouse look. Grand impressions are made on the inside, beneath the entry and great room’s 2-story-high ceiling. The great room, with views to the rear through a covered deck, is warmed by a beautiful fireplace. The kitchen, open to the dining area, boasts generous counter space, a work island, and walk-in pantry. The home’s 3-car garage is accessed from the kitchen through a mudroom/utility area, complete with laundry, powder bath, and bench/lockers. The master suite rests quietly away from the hustle and bustle of the main-floor living areas. Its bath is well appointed with his and her vanities, compartmented toilet, spacious shower and roomy walk-in closet with built-in dressing seat. Upstairs, the three secondary bedrooms enjoy their own privacy. Bedrooms 3 and 4 each include a walk-in closet. Bedrooms 2 and 3 share a Jack-n- Jill bath with compartmented toilet and tub. Bedroom 4 benefits from access to its own bath. Additional intriguing points of this house plan include views from second-story balconies to the great room and entry area below, as well as open views above and below from the U-shaped stairway.
Specifications
Total 2687 sq ft
- Main: 1786
- Second: 901
- Third: 0
- Loft/Bonus: 0
- Basement: 0
- Garage: 775
Rooms
- Beds: 4
- Baths: 3
- 1/2 Bath: 1
- 3/4 Bath: 0
Ceiling Height
- Main: 9'0
- Second: 8'0
- Third:
- Loft/Bonus:
- Basement: 9'0
- Garage:
Details
- Exterior Walls: 2x4 Steel Studs
- Garage Type: tripleGarage
- Width: 65'0
- Depth: 54'0
Roof
- Max Ridge Height: 26'5
- Comments: (Main Floor to Peak)
- Primary Pitch: 6/12
- Secondary Pitch: 4/12

833–493–0942


