Plan No.393674
Specifications
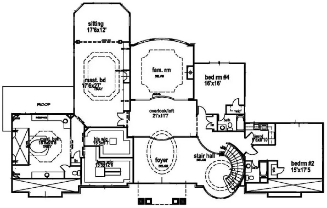
Total 4763 sq ft
- Main: 2077
- Second: 2686
- Third: 0
- Loft/Bonus: 0
- Basement: 0
- Garage: 0
Rooms
- Beds: 4
- Baths: 4
- 1/2 Bath: 1
- 3/4 Bath: 0
Ceiling Height
- Main: 10'0
- Second: 10'0
- Third:
- Loft/Bonus:
- Basement:
- Garage:
Details
- Exterior Walls: 2x4
- Garage Type: tripleGarage
- Width: 104'0
- Depth: 69'0
Roof
- Max Ridge Height: 48'0
- Comments: (Main Floor to Peak)
- Primary Pitch: 8/12
- Secondary Pitch: 0/12
Add to Cart
Pricing
– westhomeplanners.com
– westhomeplanners.com
– westhomeplanners.com
Front Photo – westhomeplanners.com
Foyer to Parlor – westhomeplanners.com
Upper Hall to Loft – westhomeplanners.com
Parlor to Family Rm – westhomeplanners.com
Family Rm to Kitchen – westhomeplanners.com
Master Bath – westhomeplanners.com
Dining to Foyer – westhomeplanners.com
[Back to Search Results]

833–493–0942








