Plan No.354251
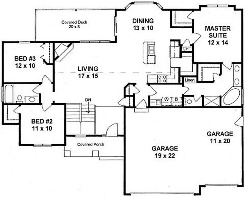
Split bedroom ranch featuring a wide open and vaulted living area, his & her walk-in closets, hidden walk-in Pantry, Utility room short-cut, Covered deck, Covered porch and an oversized Garage. The Basement is designed to add a large Recreation room, 3 more 13' x 12' bedrooms and a full bath. Features: Vaulted Ceilings in Living, Dining, Kitchen, Foyer & Master Suite (10' high at peak), View-out (Daylight) Basement, Plant Shelves, Bay Window, Covered Front Porch, Covered Rear Deck, Walk-In Closet, Gas-log Fireplace, & Walk-In Pantry.
Specifications
Total 1524 sq ft
- Main: 1524
- Second: 0
- Third: 0
- Loft/Bonus: 0
- Basement: 1402
- Garage: 0
Rooms
- Beds: 3
- Baths: 2
- 1/2 Bath: 0
- 3/4 Bath: 0
Ceiling Height
- Main: 8'0
- Second:
- Third:
- Loft/Bonus:
- Basement: 8'0
- Garage:
Details
- Exterior Walls: 2x4
- Garage Type: 3 Car Garage
- Width: 60'0
- Depth: 49'0
Roof
- Max Ridge Height:
- Comments: ()
- Primary Pitch: 0/12
- Secondary Pitch: 0/12
Add to Cart
Pricing
– westhomeplanners.com
– westhomeplanners.com
– westhomeplanners.com
[Back to Search Results]

833–493–0942

