Plan No.350051
Split-Bedroom Privacy
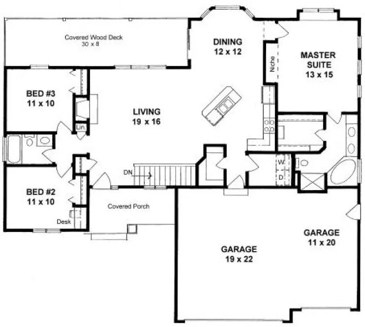
This plan is designed for split-bedroom privacy and an open living area with access to the covered rear deck. The Kitchen has an Island bar and a walk-in pantry, the Master Suite features a window seat and a furniture niche. Nine foot ceilings thru-out the house are raised even more with vaults in the Living, Dining, Kitchen and Master Suite. Features: Vaulted Ceilings, Plant Shelves, Window Seat, Bay Window, Covered Porch, Covered Deck, Walk-In Closet, Fireplace, 9' Ceilings, Walk-In Pantry & View-out (Daylight) Basement.
Specifications
Total 1500 sq ft
- Main: 1500
- Second: 0
- Third: 0
- Loft/Bonus: 0
- Basement: 1392
- Garage: 0
Rooms
- Beds: 3
- Baths: 2
- 1/2 Bath: 0
- 3/4 Bath: 0
Ceiling Height
- Main: 9'0
- Second:
- Third:
- Loft/Bonus:
- Basement: 8'0
- Garage:
Details
- Exterior Walls: 2x4
- Garage Type: 3 Car Garage
- Width: 58'0
- Depth: 52'0
Roof
- Max Ridge Height:
- Comments: ()
- Primary Pitch: 6/12
- Secondary Pitch: 7.5/12
Add to Cart
Pricing
– westhomeplanners.com
– westhomeplanners.com
– westhomeplanners.com
[Back to Search Results]

833–493–0942

