Plan No.333842
Man Cave
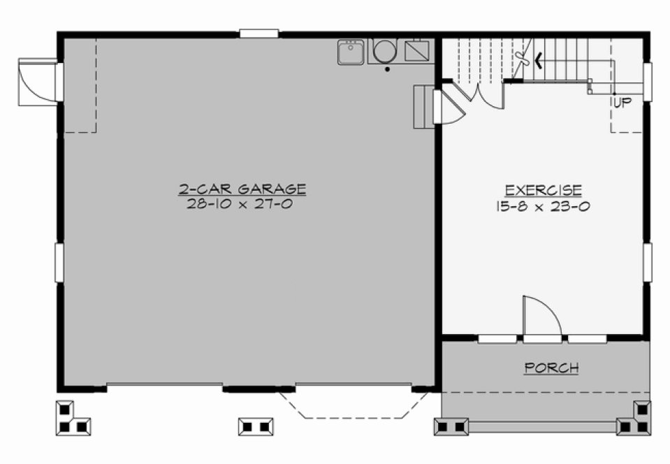
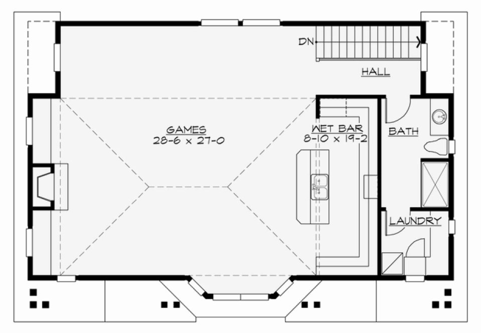
The Total Area of this Carriage House both floors is 2483 sq. ft.; Upper Floor 1260 sq. ft., Main Floor is the Exercise/Staircase area of 400 sq. ft., and the Garage area of 823 sq. ft. for a Main Floor total of 1223 sq. ft.
Specifications
Total 2483 sq ft
- Main: 1223
- Second: 1260
- Third: 0
- Loft/Bonus: 0
- Basement: 0
- Garage: 823
Rooms
- Beds: 1
- Baths: 0
- 1/2 Bath: 0
- 3/4 Bath: 1
Ceiling Height
- Main: 8'0
- Second: 9'0
- Third:
- Loft/Bonus:
- Basement:
- Garage:
Details
- Exterior Walls: 2x6
- Garage Type:
- Width: 46'0
- Depth: 31'0
Roof
- Max Ridge Height: 28'6
- Comments: (Main Floor to Peak)
- Primary Pitch: 8/12
- Secondary Pitch: 0/12
Add to Cart
Pricing
– westhomeplanners.com
– westhomeplanners.com
– westhomeplanners.com
– westhomeplanners.com
– westhomeplanners.com
– westhomeplanners.com
[Back to Search Results]

833–493–0942




