Plan No.699222
Specifications
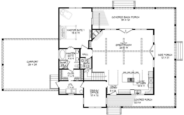
Total 2229 sq ft
- Main: 1569
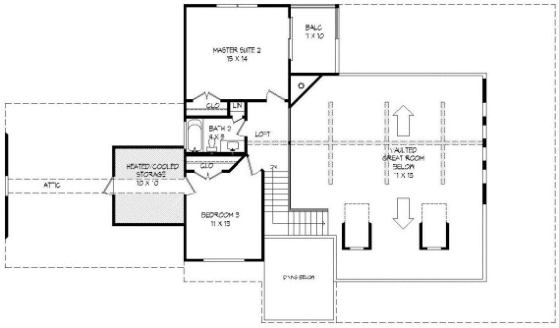
- Second: 660
- Third: 0
- Loft/Bonus: 100
- Basement: 0
- Garage: 624
Rooms
- Beds: 3
- Baths: 2
- 1/2 Bath: 1
- 3/4 Bath: 0
Ceiling Height
- Main: 9'0
- Second: 8'0
- Third:
- Loft/Bonus:
- Basement:
- Garage:
Details
- Exterior Walls: 2x4
- Garage Type: doubleCarport
- Width: 80'2
- Depth: 46'6
Roof
- Max Ridge Height: 25'10
- Comments: (Main Floor to Peak)
- Primary Pitch: 10/12
- Secondary Pitch: 5/12
Add to Cart
Pricing
– westhomeplanners.com
– westhomeplanners.com
– westhomeplanners.com
– westhomeplanners.com
– westhomeplanners.com
– westhomeplanners.com
[Back to Search Results]

833–493–0942




