Plan No.709891
Mud Room with Lockers
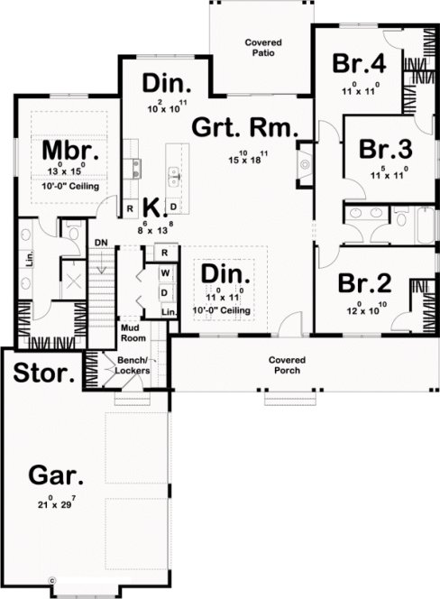
This beautifully configured Farmhouse plan offers amenities that are usually found in much larger home designs. On the outside, board and batten siding and a covered porch put on a striking display of curb appeal. Just inside, you'll be amazed at the open floor plan including a magnificent great room, which is warmed by a fireplace and flows into a dining room with exposed beams. The kitchen boasts a spacious island with a breakfast bar. Just beyond the great room, a covered patio extends entertaining options. The master suite enjoys a luxurious bath, complete with compartmented toilet, walk-in shower, dual vanities, and a large walk-in closet. On the other side of this house plan, 3 bedrooms share a conveniently located bathroom in the hallway. The large 2 car garage accesses the home through a convenient mud room complete with a bench and lockers.
Specifications
Total 1989 sq ft
- Main: 1989
- Second: 0
- Third: 0
- Loft/Bonus: 0
- Basement: 0
- Garage: 605
Rooms
- Beds: 4
- Baths: 1
- 1/2 Bath: 0
- 3/4 Bath: 1
Ceiling Height
- Main: 9'0
- Second:
- Third:
- Loft/Bonus:
- Basement: 9'0
- Garage:
Details
- Exterior Walls: 2x4 Steel Studs
- Garage Type: doubleGarage
- Width: 56'0
- Depth: 77'0
Roof
- Max Ridge Height: 24'0
- Comments: (Main Floor to Peak)
- Primary Pitch: 8/12
- Secondary Pitch: 10/12

833–493–0942

