Plan No.705811
A Lot to Offer
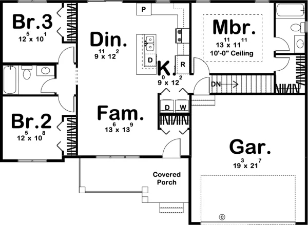
A Modern Farmhouse facade, this is a handsome 1 story house plan with a great floor plan to match! The covered porch is an inviting approach to this house plan with detailed wood columns and board and batten siding.This 3 bedroom home has an open great room perfect for entertaining. The master suite also has a roomy walk-in closet not found in homes this size. The footprint will fit most lot sizes and the curb appeal will welcome you home.
Specifications
Total 1185 sq ft
- Main: 1185
- Second: 0
- Third: 0
- Loft/Bonus: 0
- Basement: 0
- Garage: 436
Rooms
- Beds: 3
- Baths: 2
- 1/2 Bath: 0
- 3/4 Bath: 0
Ceiling Height
- Main: 9'0
- Second:
- Third:
- Loft/Bonus:
- Basement: 9'0
- Garage:
Details
- Exterior Walls: 2x4 Steel Studs
- Garage Type: doubleGarage
- Width: 52'0
- Depth: 38'0
Roof
- Max Ridge Height: 21'0
- Comments: (Main Floor to Peak)
- Primary Pitch: 6/12
- Secondary Pitch: 0/12
Add to Cart
Pricing
Full Rendering – westhomeplanners.com
MAIN Plan – westhomeplanners.com
REAR Elevation – westhomeplanners.com
[Back to Search Results]

833–493–0942

