Plan No.140021
Modern Scandinavian Style Cottage
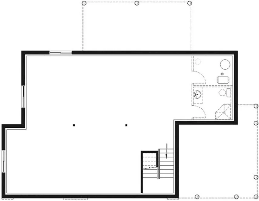
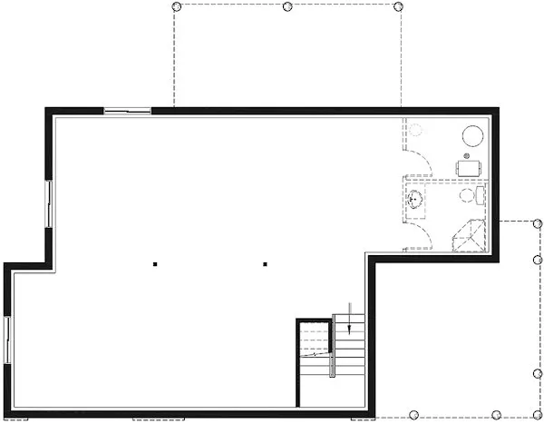
A wonderful new and modern cottage plan, strongly inspired by Scandinavian style home plans. The original architecture of this plan offers several most appreciated elements such as a lot of natural light towards the front, in the back and especially in the kitchen area where a huge window is fitted out above the sink. In addition, the large front porch is covered and a pergola can easily be added to let light in the living room and dining room, on the rear deck. The entrance has a large walk-in closet, ideal for storing outdoor clothing and sports equipment such as snowboards and snowshoes. The kitchen, dining room and living room have an open concept and have a cathedral ceiling over 16 feet high, giving this space great amplitude. The kitchen offers a large pantry and a convenient lunch counter. The living room is designed to receive an electric fireplace. Both bedrooms are of good size and each have a walk-in closet. A large family bathroom, with two sinks, separate bath and shower and the laundry room complete the interior layout of this beautiful and original modern bungalow. An unfinished basement is provided in the original plan and will allow you to add additional bedrooms and family room, as needed.
Specifications
Total 1200 sq ft
- Main: 1200
- Second: 0
- Third: 0
- Loft/Bonus: 0
- Basement: 1200
- Garage: 0
Rooms
- Beds: 2
- Baths: 0
- 1/2 Bath: 0
- 3/4 Bath: 1
Ceiling Height
- Main: 8'0
- Second:
- Third:
- Loft/Bonus:
- Basement: 8'0
- Garage:
Details
- Exterior Walls: 2x6
- Garage Type:
- Width: 48'0
- Depth: 30'0
Roof
- Max Ridge Height: 24'6
- Comments: (Main Floor to Peak)
- Primary Pitch: 12/12
- Secondary Pitch: 0/12

833–493–0942



