Plan No.157662
Eminent Flexibility
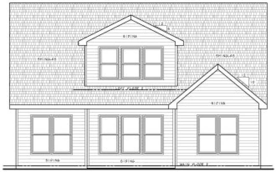
Craftsman charm meets eminent flexibility in this design. Up front, bedroom 2 is a natural location for a home office/den, if that’s how you want this home to live. Or would you rather have your office or studio upstairs, away from daily activity? Then there’s the 270 square foot rec room upstairs, offering so many possibilities! The owner’s suite offers options, too, with a doorless oversize shower bathroom design and an alternate bathroom with both a tub and shower. And, there’s an alternate island kitchen design for your consideration, fully open to family room.
Specifications
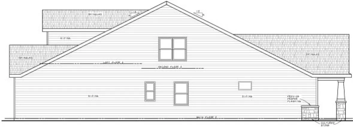
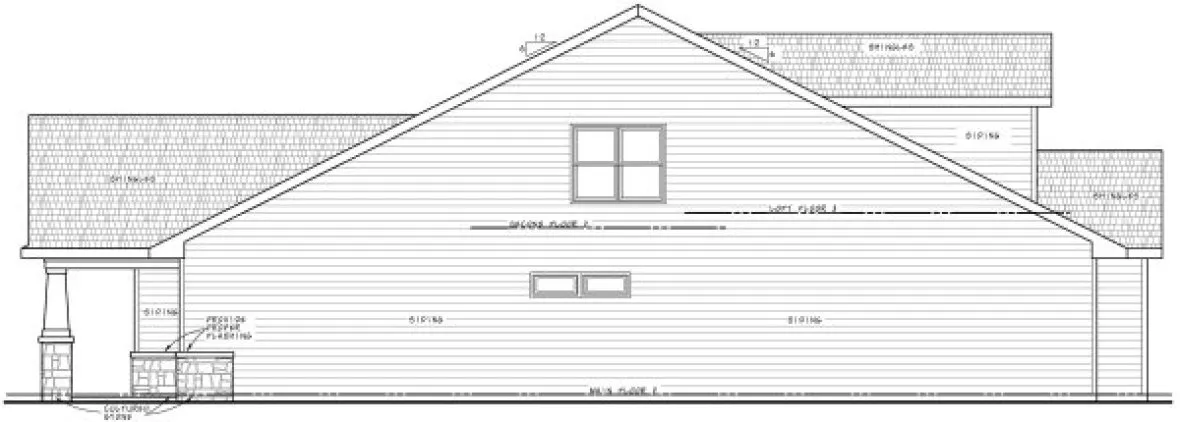
Total 2666 sq ft
- Main: 1894
- Second: 772
- Third: 0
- Loft/Bonus: 0
- Basement: 0
- Garage: 458
Rooms
- Beds: 3
- Baths: 1
- 1/2 Bath: 0
- 3/4 Bath: 2
Ceiling Height
- Main: 10'0
- Second: 8'0
- Third:
- Loft/Bonus:
- Basement:
- Garage:
Details
- Exterior Walls: 2x6
- Garage Type: doubleGarage
- Width: 39'0
- Depth: 73'4
Roof
- Max Ridge Height: 28'1
- Comments: (Main Floor to Peak)
- Primary Pitch: 6/12
- Secondary Pitch: 6/12
Add to Cart
Pricing
– westhomeplanners.com
– westhomeplanners.com
– westhomeplanners.com
– westhomeplanners.com
– westhomeplanners.com
– westhomeplanners.com
[Back to Search Results]

833–493–0942




