Plan No.632932
Inviting Country Charm
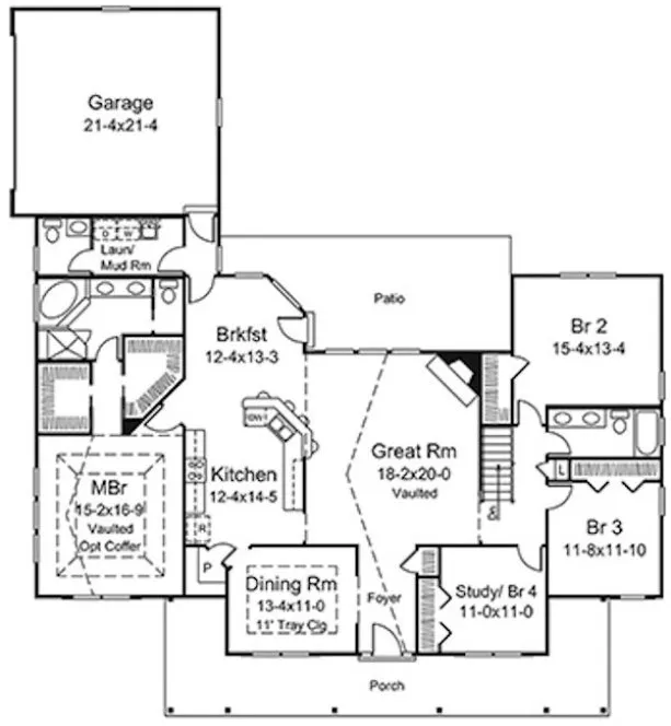
This Country Ranch Home has 4 bedrooms, 2 full baths and 1 half bath. This home's floor plan is ideal for the busy family since it combines the living spaces that include the breakfast area, great room and kitchen as the heart of this home. The nearby laundry/mud room also has a convenient half bath. The elegant master bedroom provides plenty of luxury for the homeowners with a spacious bath and two sizeable walk-in closets that help to keep everything organized.
Specifications
Total 2392 sq ft
- Main: 2392
- Second: 0
- Third: 0
- Loft/Bonus: 0
- Basement: 0
- Garage: 0
Rooms
- Beds: 4
- Baths: 2
- 1/2 Bath: 1
- 3/4 Bath: 0
Ceiling Height
- Main:
- Second:
- Third:
- Loft/Bonus:
- Basement:
- Garage:
Details
- Exterior Walls: 2x4
- Garage Type: doubleGarage
- Width: 68'6
- Depth: 74'0
Roof
- Max Ridge Height:
- Comments: ()
- Primary Pitch: 0/12
- Secondary Pitch: 0/12
Add to Cart
Pricing
– westhomeplanners.com
– westhomeplanners.com
– westhomeplanners.com
– westhomeplanners.com
– westhomeplanners.com
[Back to Search Results]

833–493–0942



