Plan No.634522
Enchanting Courtyard Brings the Outdoors In
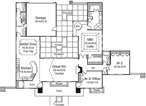
This Florida Style Home has 3 bedrooms, 2 full baths and 1 half bath. The expansive front porch has a large planter box and protection from the elements. A spacious entry with guest closet welcomes you into a huge vaulted great room with fireplace and two 9' sliding doors which view the center courtyard. The breakfast/dining room enjoys a 10' tray ceiling with courtyard view and is open to a state-of-the-art kitchen. A 10' high coffered ceiling, sliding doors to courtyard, two walk-in closets, luxury bath with separate 4x5 shower and a sumptuous spa area with 7 windows with courtyard view are the many exciting features of the master bedroom.
Specifications
Total 2254 sq ft
- Main: 2254
- Second: 0
- Third: 0
- Loft/Bonus: 0
- Basement: 0
- Garage: 0
Rooms
- Beds: 3
- Baths: 2
- 1/2 Bath: 1
- 3/4 Bath: 0
Ceiling Height
- Main:
- Second:
- Third:
- Loft/Bonus:
- Basement:
- Garage:
Details
- Exterior Walls: 2x4
- Garage Type: doubleGarage
- Width: 75'0
- Depth: 59'4
Roof
- Max Ridge Height:
- Comments: ()
- Primary Pitch: 0/12
- Secondary Pitch: 0/12
Add to Cart
Pricing
Full Rendering – westhomeplanners.com
MAIN Plan – westhomeplanners.com
Courtyard – westhomeplanners.com
REAR Elevation – westhomeplanners.com
LEFT Elevation – westhomeplanners.com
RIGHT Elevation – westhomeplanners.com
[Back to Search Results]

833–493–0942




