Plan No.632702
Living Areas Enjoy Rear Covered Patio
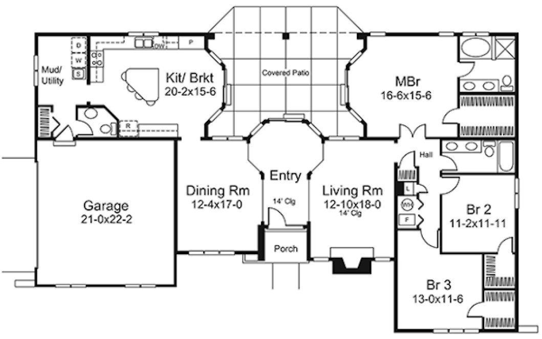
This Sunbelt Home has 3 bedrooms, 2 full baths and 1 half bath. A special entry features double “full glass” doors, 14' volume ceiling and a bay window with view of rear patio. The living room has a 14' volume ceiling, several windows flanking the fireplace and a view of the covered patio. A bay windowed breakfast area, built-in cabinet pantry and spacious island with seating for four are the many outstanding amenities of the inspiring kitchen. The mud/utility room is very spacious and includes a sink, half bath and coat closet. A luxury bath with separate shower, large walk-in closet and bay window viewing rear patio are the inviting features of the master bedroom.
Specifications
Total 2072 sq ft
- Main: 2072
- Second: 0
- Third: 0
- Loft/Bonus: 0
- Basement: 0
- Garage: 0
Rooms
- Beds: 3
- Baths: 2
- 1/2 Bath: 1
- 3/4 Bath: 0
Ceiling Height
- Main:
- Second:
- Third:
- Loft/Bonus:
- Basement:
- Garage:
Details
- Exterior Walls: 2x6
- Garage Type: doubleGarage
- Width: 74'0
- Depth: 46'0
Roof
- Max Ridge Height:
- Comments: ()
- Primary Pitch: 0/12
- Secondary Pitch: 0/12
Add to Cart
Pricing
– westhomeplanners.com
– westhomeplanners.com
– westhomeplanners.com
– westhomeplanners.com
– westhomeplanners.com
[Back to Search Results]

833–493–0942



