Plan No.630861
Terrific Lake House For A Tight Budget
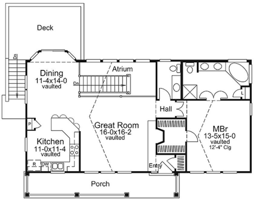
This Home has 3 bedrooms, 2 full baths and 1 half bath. The vaulted great room, dining and kitchen borrow space and natural light from the atrium to create spacious living in a small home. A vaulted ceiling, double entry doors, luxurious bath and large walk-in closet are features of the master bedroom that are rarely found in a home of this size. The lower level consists of a family room/atrium, two secondary bedrooms, full bath, mechanical closet/laundry and a two-car rear garage perfect for boat storage and lake access.
Specifications
Total 1680 sq ft
- Main: 1168
- Second: 0
- Third: 0
- Loft/Bonus: 0
- Basement: 512
- Garage: 0
Rooms
- Beds: 3
- Baths: 1
- 1/2 Bath: 1
- 3/4 Bath: 1
Ceiling Height
- Main:
- Second:
- Third:
- Loft/Bonus:
- Basement:
- Garage:
Details
- Exterior Walls: 2x4
- Garage Type: doubleGarage
- Width: 48'0
- Depth: 31'0
Roof
- Max Ridge Height:
- Comments: ()
- Primary Pitch: 0/12
- Secondary Pitch: 0/12
Add to Cart
Pricing
– westhomeplanners.com
– westhomeplanners.com
– westhomeplanners.com
– westhomeplanners.com
– westhomeplanners.com
– westhomeplanners.com
[Back to Search Results]

833–493–0942




