Plan No.632116
Traditional Two-Story Duplex
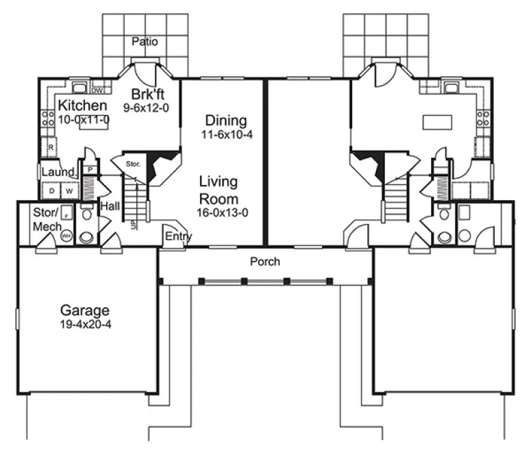
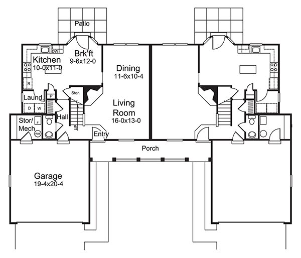
This Duplex Home has 6 bedrooms, 4 full baths and 2 half baths. Multiple gables, a hip roof and an elongated porch all help to create this handsome exterior to this multi-family home. The large living room has a corner fireplace and is open to the very spacious dining area. A convenient laundry room, built-in pantry and island cabinetry are some of the many amenities of the well-equipped kitchen. All the bedrooms are located on he second floor for peace and quiet. Each unit totals 3056 sq. ft., 1498 sq. ft. on the Main Floor, 1558 sq. ft. on the Second Floor. There is a 2-Car Garage for each unit.
Specifications
Total 6112 sq ft
- Main: 2996
- Second: 3116
- Third: 0
- Loft/Bonus: 0
- Basement: 0
- Garage: 0
Rooms
- Beds: 6
- Baths: 4
- 1/2 Bath: 2
- 3/4 Bath: 0
Ceiling Height
- Main:
- Second:
- Third:
- Loft/Bonus:
- Basement:
- Garage:
Details
- Exterior Walls: 2x4
- Garage Type: fourGarage
- Width: 70'0
- Depth: 46'8
Roof
- Max Ridge Height:
- Comments: ()
- Primary Pitch: 0/12
- Secondary Pitch: 0/12
Add to Cart
Pricing
– westhomeplanners.com
– westhomeplanners.com
– westhomeplanners.com
– westhomeplanners.com
– westhomeplanners.com
– westhomeplanners.com
[Back to Search Results]

833–493–0942




