Plan No.201154
A Turreted Beauty
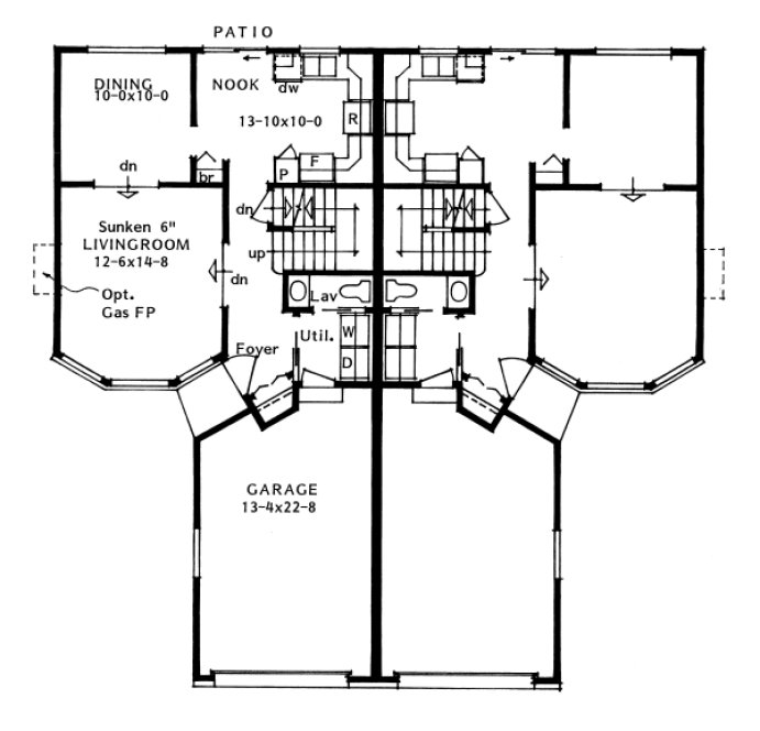
Starting with good curb appeal one moves in for a closer look...a covered entry is a nice touch, so is the good-sized foyer. A well-placed utility and powder room are just off the other door from the garage. A beautiful kitchen complete with a breakfast nook that opens out onto the rear patio is close to the formal dining room. The livingroom is an interesting shape and an optional gas fireplace could add character to this room. The TOTAL area of both duplexes is 2548 sq feet.
Specifications
Total 1274 sq ft
- Main: 656
- Second: 618
- Third: 0
- Loft/Bonus: 0
- Basement: 650
- Garage: 300
Rooms
- Beds: 3
- Baths: 1
- 1/2 Bath: 1
- 3/4 Bath: 0
Ceiling Height
- Main: 8
- Second: 8
- Third:
- Loft/Bonus:
- Basement: 8
- Garage: 9'4
Details
- Exterior Walls: 2x6
- Garage Type: singleGarage
- Width: 50
- Depth: 49
Roof
- Max Ridge Height: 24
- Comments: ()
- Primary Pitch: 5/12
- Secondary Pitch: 0/12
Add to Cart
Pricing
– westhomeplanners.com
– westhomeplanners.com
– westhomeplanners.com
[Back to Search Results]

833–493–0942

