Plan No.634512
Cut-Above Features And A Classic Expression
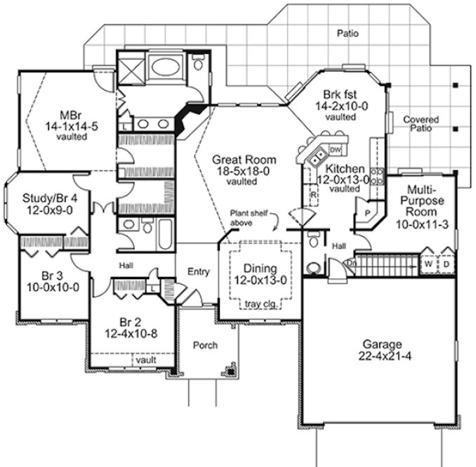
This Ranch Home has 4 bedrooms, 2 full baths and 1 half bath. Open to a capacious great room is a cheery breakfast room surrounded by three 6' glass sliding doors that lead to the rear and covered side patios. The awesome kitchen features a long angled breakfast counter, walk-in pantry and adjoins a multi-purpose room ideal for a large laundry, study hobby or exercise room. The vaulted master bedroom has a lavish bath, double walk-in closets and adjoining study/nursery with an attractive bay window.
Specifications
Total 2154 sq ft
- Main: 2154
- Second: 0
- Third: 0
- Loft/Bonus: 0
- Basement: 0
- Garage: 0
Rooms
- Beds: 4
- Baths: 2
- 1/2 Bath: 1
- 3/4 Bath: 0
Ceiling Height
- Main:
- Second:
- Third:
- Loft/Bonus:
- Basement:
- Garage:
Details
- Exterior Walls: 2x4
- Garage Type: doubleGarage
- Width: 67'0
- Depth: 55'8
Roof
- Max Ridge Height:
- Comments: ()
- Primary Pitch: 0/12
- Secondary Pitch: 0/12
Add to Cart
Pricing
– westhomeplanners.com
– westhomeplanners.com
– westhomeplanners.com
– westhomeplanners.com
– westhomeplanners.com
[Back to Search Results]

833–493–0942



