Plan No.634181
Luxury Living In A Country Home Plan
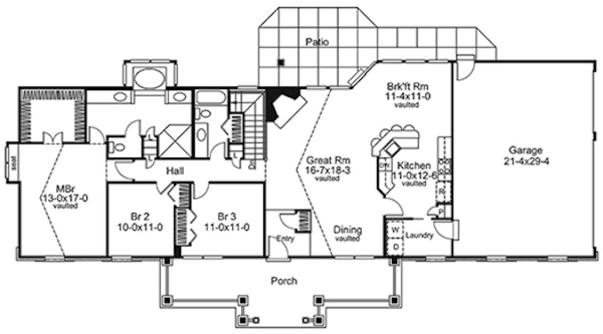
This Traditional Home has 3 bedrooms and 2 full baths. This home enjoys a large country porch for a perfect leisure living area. The vaulted great room, sunny breakfast room and kitchen with snack bar are all open to one another to create a very open sense of spaciousness. A sensational lavish bath is the highlight of the master bedroom suite which features double vanities with a make-up counter, 5'x5' shower with seat, separate toilet and a step-up whirlpool-in-a-sunroom.
Specifications
Total 1814 sq ft
- Main: 1814
- Second: 0
- Third: 0
- Loft/Bonus: 0
- Basement: 0
- Garage: 0
Rooms
- Beds: 3
- Baths: 2
- 1/2 Bath: 0
- 3/4 Bath: 0
Ceiling Height
- Main:
- Second:
- Third:
- Loft/Bonus:
- Basement:
- Garage:
Details
- Exterior Walls: 2x4
- Garage Type: tripleGarage
- Width: 89'10
- Depth: 40'2
Roof
- Max Ridge Height:
- Comments: ()
- Primary Pitch: 0/12
- Secondary Pitch: 0/12
Add to Cart
Pricing
– westhomeplanners.com
– westhomeplanners.com
– westhomeplanners.com
– westhomeplanners.com
– westhomeplanners.com
[Back to Search Results]

833–493–0942



