Plan No.630841
Earth Berm Home With Style
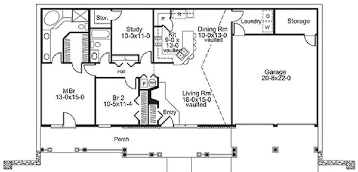
This Berm Home has 2 bedrooms and 2 full baths. This home has great looks and lots of space. Nestled in a hillside with only one exposed exterior wall, this home offers efficiency, protection and affordability. Triple patio doors with an arched transom bathe the living room with sunlight. The kitchen features a snack bar open to the living room, a large built-in pantry and adjoins a spacious dining area.
Specifications
Total 1480 sq ft
- Main: 1480
- Second: 0
- Third: 0
- Loft/Bonus: 0
- Basement: 0
- Garage: 0
Rooms
- Beds: 2
- Baths: 2
- 1/2 Bath: 0
- 3/4 Bath: 0
Ceiling Height
- Main:
- Second:
- Third:
- Loft/Bonus:
- Basement:
- Garage:
Details
- Exterior Walls: 2x4
- Garage Type: doubleGarage
- Width: 70'0
- Depth: 36'0
Roof
- Max Ridge Height:
- Comments: ()
- Primary Pitch: 0/12
- Secondary Pitch: 0/12
Add to Cart
Pricing
– westhomeplanners.com
– westhomeplanners.com
– westhomeplanners.com
– westhomeplanners.com
– westhomeplanners.com
[Back to Search Results]

833–493–0942



