Plan No.631491
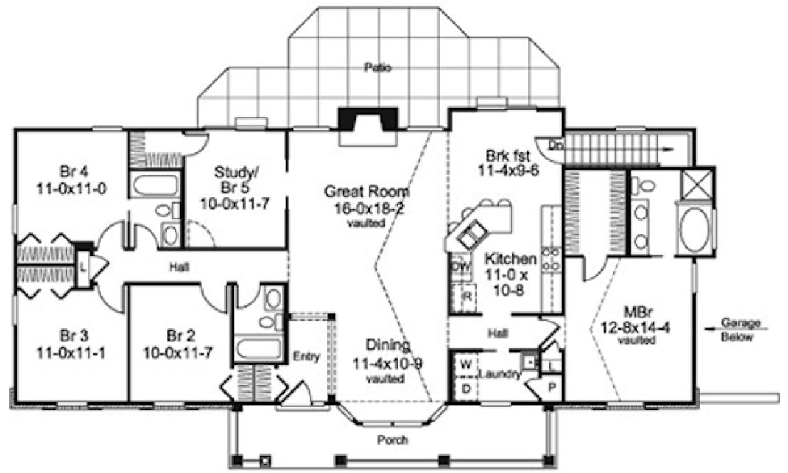
Perfect Home For A Large Family On A Budget
This Country Home has 5 bedrooms and 3 full baths. Interesting roof lines and a spacious front porch with flanking stonework help to fashion this beautiful country home. The vaulted great room is open to the bayed dining area suitable for friends and a large family. The study/bedroom #5 offers oversized double pocket doors that open directly into the great room. Four additional bedrooms complete the home, including the private master bedroom.
Specifications
Total 1941 sq ft
- Main: 1941
- Second: 0
- Third: 0
- Loft/Bonus: 0
- Basement: 0
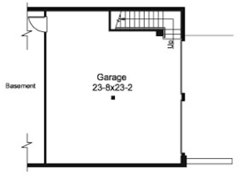
- Garage: 0
Rooms
- Beds: 5
- Baths: 3
- 1/2 Bath: 0
- 3/4 Bath: 0
Ceiling Height
- Main:
- Second:
- Third:
- Loft/Bonus:
- Basement:
- Garage:
Details
- Exterior Walls: 2x4
- Garage Type: doubleGarage
- Width: 70'4
- Depth: 35'8
Roof
- Max Ridge Height:
- Comments: ()
- Primary Pitch: 0/12
- Secondary Pitch: 0/12
Add to Cart
Pricing
– westhomeplanners.com
– westhomeplanners.com
– westhomeplanners.com
– westhomeplanners.com
– westhomeplanners.com
– westhomeplanners.com
[Back to Search Results]

833–493–0942




