Plan No.632351
Country Ranch With Dramatic Atrium Views
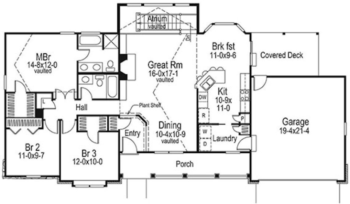
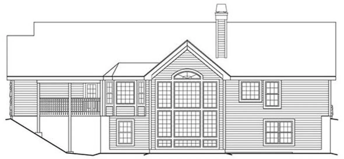
This Country Ranch Home has 3 bedrooms and 2 full baths. Multiple gables and stonework deliver a warm and inviting exterior to this wonderful home. The vaulted great room has a stylish fireplace and spectacular views accomplished with a two-story atrium window wall. A covered rear porch is easily accessed from the charming breakfast room or garage. The optional lower level has an additional square feet of living area and is great for a recreation room.
Specifications
Total 1532 sq ft
- Main: 1532
- Second: 0
- Third: 0
- Loft/Bonus: 0
- Basement: 0
- Garage: 0
Rooms
- Beds: 3
- Baths: 2
- 1/2 Bath: 0
- 3/4 Bath: 0
Ceiling Height
- Main:
- Second:
- Third:
- Loft/Bonus:
- Basement:
- Garage:
Details
- Exterior Walls: 2x4
- Garage Type: doubleGarage
- Width: 71'8
- Depth: 38'0
Roof
- Max Ridge Height:
- Comments: ()
- Primary Pitch: 0/12
- Secondary Pitch: 0/12
Add to Cart
Pricing
– westhomeplanners.com
– westhomeplanners.com
– westhomeplanners.com
Rear Rendering – westhomeplanners.com
– westhomeplanners.com
– westhomeplanners.com
– westhomeplanners.com
[Back to Search Results]

833–493–0942





