Plan No.630108
Two Bedroom Cottage With Garage And Shop
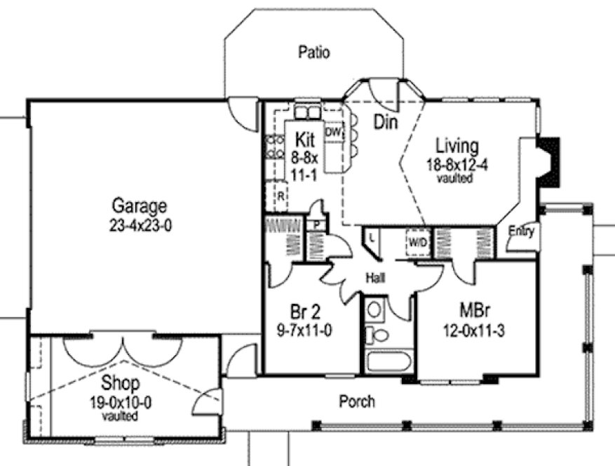
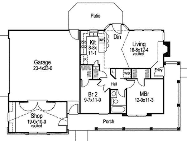
This Cottage Home has 2 bedrooms and 1 full bath. A wrap-around porch, roof dormer and fancy stonework all contribute to a delightful and charming exterior. The living room enjoys a separate entry, a stone fireplace, vaulted ceiling and lots of windows. The well-equipped kitchen has a snack bar and dining area with bay which offers access to the rear patio. An oversized two-car garage features a large vaulted room ideal for a shop, studio, hobby room or office with built-in cabinets and access to the porch.
Specifications
Total 801 sq ft
- Main: 801
- Second: 0
- Third: 0
- Loft/Bonus: 0
- Basement: 0
- Garage: 0
Rooms
- Beds: 0
- Baths: 0
- 1/2 Bath: 0
- 3/4 Bath: 0
Ceiling Height
- Main:
- Second:
- Third:
- Loft/Bonus:
- Basement:
- Garage:
Details
- Exterior Walls: 2x4
- Garage Type: doubleGarage
- Width: 57'0
- Depth: 36'4
Roof
- Max Ridge Height:
- Comments: ()
- Primary Pitch: 0/12
- Secondary Pitch: 0/12
Add to Cart
Pricing
– westhomeplanners.com
– westhomeplanners.com
– westhomeplanners.com
– westhomeplanners.com
– westhomeplanners.com
[Back to Search Results]

833–493–0942



