Plan No.630131
Affordable Simplicity
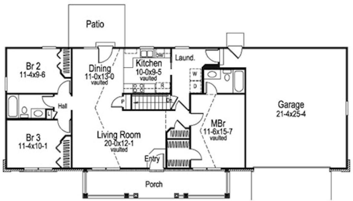
This Country Ranch Home has 3 bedrooms and 2 full baths. The combination of brick quoins, roof dormers and an elegant porch create a classic look. Open-space floor plan has vaulted kitchen, living and dining rooms. The master bedroom is vaulted and enjoys privacy from other bedrooms. A spacious laundry room is convenient to the kitchen and master bedroom with access to an oversized garage.
Specifications
Total 1310 sq ft
- Main: 1310
- Second: 0
- Third: 0
- Loft/Bonus: 0
- Basement: 0
- Garage: 0
Rooms
- Beds: 3
- Baths: 2
- 1/2 Bath: 0
- 3/4 Bath: 0
Ceiling Height
- Main:
- Second:
- Third:
- Loft/Bonus:
- Basement:
- Garage:
Details
- Exterior Walls: 2x4
- Garage Type: doubleGarage
- Width: 73'8
- Depth: 32'0
Roof
- Max Ridge Height:
- Comments: ()
- Primary Pitch: 0/12
- Secondary Pitch: 0/12
Add to Cart
Pricing
– westhomeplanners.com
– westhomeplanners.com
Alternate Rendering – westhomeplanners.com
– westhomeplanners.com
– westhomeplanners.com
– westhomeplanners.com
[Back to Search Results]

833–493–0942




