Plan No.638883
Elegant, Stylish And Sophisticated
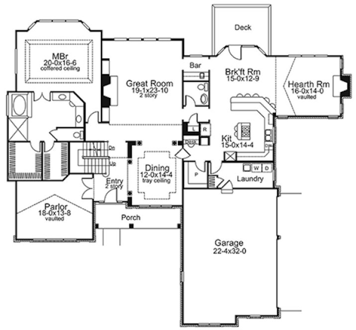
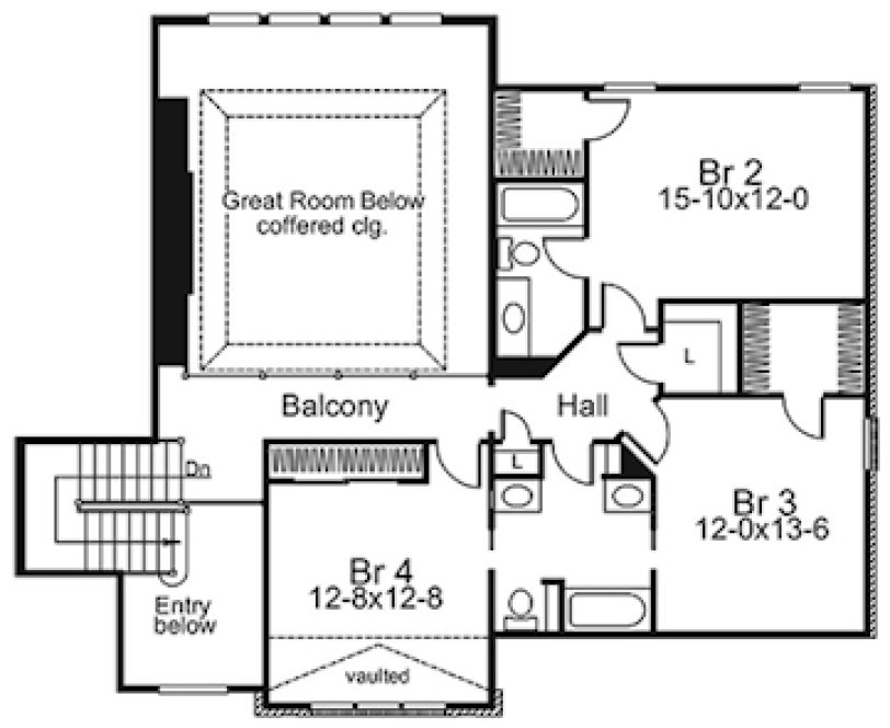
This Traditional Home has 4 bedrooms, 3 full baths and 1 half bath. Detailed brickwork surrounding the arched windows and quoined corners create a timeless exterior. The two-story great room has a large fireplace, flanking bookshelves, massive window wall and balcony overlook. The state-of-the-art kitchen has an island cooktop, built-in oven/microwave oven, large pantry, menu desk and opens to the breakfast and hearth rooms. A coffered ceiling, bay window, two walk-in closets and a huge bath adorn the master bedroom.
Specifications
Total 3888 sq ft
- Main: 2793
- Second: 1095
- Third: 0
- Loft/Bonus: 0
- Basement: 0
- Garage: 700
Rooms
- Beds: 4
- Baths: 3
- 1/2 Bath: 1
- 3/4 Bath: 0
Ceiling Height
- Main:
- Second:
- Third:
- Loft/Bonus:
- Basement:
- Garage:
Details
- Exterior Walls: 2x4
- Garage Type: tripleGarage
- Width: 82'0
- Depth: 72'6
Roof
- Max Ridge Height:
- Comments: ()
- Primary Pitch: 0/12
- Secondary Pitch: 0/12
Add to Cart
Pricing
– westhomeplanners.com
– westhomeplanners.com
– westhomeplanners.com
Rear Photo – westhomeplanners.com
Artist's Rendering – westhomeplanners.com
– westhomeplanners.com
– westhomeplanners.com
– westhomeplanners.com
[Back to Search Results]

833–493–0942






